header-logo2.png Huurflits

Kamer Bulgarijepad in Haarlem

Bulgarijepad , 2034 XL Haarlem

€ 850,00 incl. G/W/E

Beschrijving

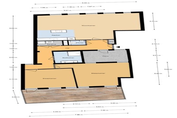
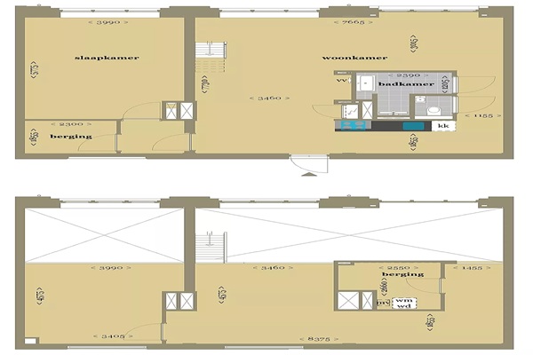
Ideaal voor studenten en jonge professionals. -Privé gemeubileerde kamer (bed, kledingkast, bureau) -Gedeelde badkamer en keukengerei -Gedeelde woonkamer -Inclusief wifi -Gedeelde parkeerplaats -Comfortabele gemeenschappelijke ruimte Ideaal voor -Internationale studenten -Uitwisselingsstudenten -Jonge professionals / stagiaires Ontdek een lichte en volledig ingerichte privékamer (8 m2) in een comfortabel gedeeld huis oppad, Haarlem — perfect voor uw verblijf in Nederland. Dit goed onderhouden huis (ca. 93 m2) biedt gedeelde woonruimtes, een tuin, parkeergelegenheid en wifi, allemaal op loopafstand van lokale voorzieningen zoals supermarkten en het treinstation.

Verstuur een bericht

Door een bericht te sturen kom je in contact met de aanbieder of makelaar van de woning.

Bericht versturen

Woningdetails

  • Huurprijs p.m. :

  • Oppervlakte :

  • Kamers :

  • Badkamers :

  • Slaapkamers :

  • € 850,00

  • 8 m2

  • 1

  • 1

  • 1

  • Woningtype :

  • Interieur :

  • Beschikbaar vanaf :

  • Beschikbaar tot :

  • Huisgenoot :

  • Kamer

  • n/a

  • 17-02-2026

  • n/a

  • 3

Faciliteiten

  • Badkamer :

  • Toilet :

  • Keuken :

  • Woonkamer :

  • Internet beschikbaar :

  • Gedeeld

  • Gedeeld

  • Gedeeld

  • Onbekend

  • Ja

  • Huisdieren :

  • Roken :

  • Parkeerplaats :

  • Fietsenstalling :

  • Verboden

  • Verboden

  • Niet beschikbaar

  • Niet beschikbaar

Locatie