Huurflits
Oldenzaalsestraat , 7574 PB Enschede
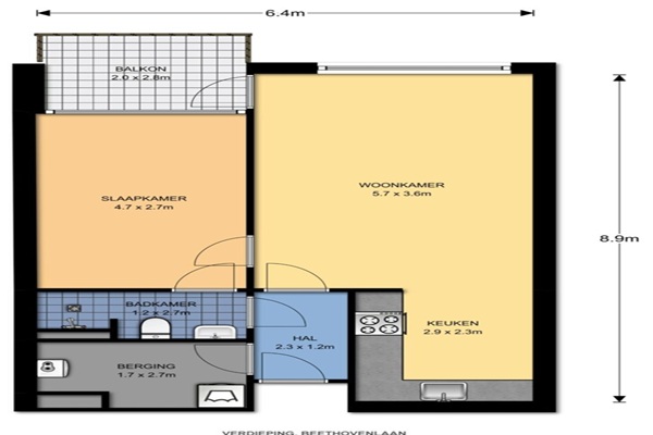
Indeling: entree hal, meterkasten tevens een inpandige berging aanwezig waar de fietsen geplaatst kunnen worden. Op de begane grond is de gemeenschappelijk woonkamer deze beschikt over een nette laminaatvloer. Tevens is hier de gesloten keuken met inbouwapparatuur zoals gaskookplaat, afzuigkap, combi-magnetron en een koelkast. Op de begane grond is ook een douche en een separate toilet. Tevens is op de eerste etage ruimte voor de wasmachine en een deur die toegang biedt tot het balkon. De tweede etage beschikt ook over een nette badkamer met douche toilet en een wastafel. Deze kamer is gelegen op de eerste etage en is ongeveer 11 m2.
Huurprijs p.m. :
Oppervlakte :
Kamers :
Badkamers :
Slaapkamers :
€ 482,00
11 m2
1
1
1
Woningtype :
Interieur :
Beschikbaar vanaf :
Beschikbaar tot :
Huisgenoot :
Kamer
n/a
17-02-2026
n/a
0
Badkamer :
Toilet :
Keuken :
Woonkamer :
Internet beschikbaar :
Gedeeld
Gedeeld
Gedeeld
Gedeeld
Ja
Huisdieren :
Roken :
Parkeerplaats :
Fietsenstalling :
Verboden
Toegestaan
Niet beschikbaar
Niet beschikbaar