header-logo2.png Huurflits

Appartement De Hoge Kei in Weert

De Hoge Kei , 6001 JB Weert

€ 1.200,00 excl. G/W/E

Beschrijving

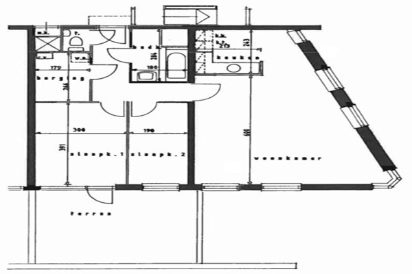
Dit ruime appartement is gelegen op de tweede verdieping van het complex en kent een oppervlakte van circa 75m². Het appartement voorziet in een ruime woonkamer (37 m²), met aangrenzend gelegen de keuken in rechte opstelling. Het appartement met de loggia (8 m²) gelegen richting de Rabobank. Het appartement is voorzien van twee slaapkamers met respectievelijke oppervlakten van ca. 12m² en 6,5m². De badkamer is gelegen direct aan de hal en is voorzien van ligbad en douche. Het toilet met fonteintje is separaat gelegen. Tot slot heeft u de beschikking over een ruime inpandige berging. Deze ruimte doet prima functie als provisie- c.q. bergruimte. In de kelder van het complex is eveneens een berging aanwezig voor bijvoorbeeld uw fiets.

Verstuur een bericht

Door een bericht te sturen kom je in contact met de aanbieder of makelaar van de woning.

Bericht versturen

Woningdetails

  • Huurprijs p.m. :

  • Oppervlakte :

  • Kamers :

  • Badkamers :

  • Slaapkamers :

  • € 1.200,00

  • 75 m2

  • 3

  • 1

  • 2

  • Woningtype :

  • Interieur :

  • Beschikbaar vanaf :

  • Beschikbaar tot :

  • Huisgenoot :

  • Appartement

  • n/a

  • 16-02-2026

  • n/a

  • 0

Faciliteiten

  • Badkamer :

  • Toilet :

  • Keuken :

  • Woonkamer :

  • Internet beschikbaar :

  • Privé

  • Privé

  • Privé

  • Privé

  • Ja

  • Huisdieren :

  • Roken :

  • Parkeerplaats :

  • Fietsenstalling :

  • Toegestaan

  • Toegestaan

  • Niet beschikbaar

  • Niet beschikbaar

Locatie