header-logo2.png Huurflits

Kamer Schenkkade in Den Haag

Schenkkade , Den Haag

€ 600,00 excl. G/W/E

Beschrijving

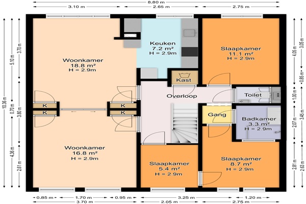
•Dit stijlvolle en charmante appartement bevindt zich op de begane grond en bestaat uit 4 lichte slaapkamers (bedden, bureaus en kasten in elke kamer). •Matrassen en kussens zijn inbegrepen (hoewel niet zichtbaar op de foto's). •Inclusief een gemeenschappelijke eetkamer en een grote zonnige achtertuin (80m2!) met een ruime berging/fietsenstalling. •Volledig gemeubileerd, inclusief een complete, ruime keuken met koelkast, vierpits gasfornuis, afzuigkap, alle borden, pannen, glazen, etc.

Verstuur een bericht

Door een bericht te sturen kom je in contact met de aanbieder of makelaar van de woning.

Bericht versturen

Woningdetails

  • Huurprijs p.m. :

  • Oppervlakte :

  • Kamers :

  • Badkamers :

  • Slaapkamers :

  • € 600,00

  • 12 m2

  • 1

  • 1

  • 1

  • Woningtype :

  • Interieur :

  • Beschikbaar vanaf :

  • Beschikbaar tot :

  • Huisgenoot :

  • Kamer

  • n/a

  • 14-02-2026

  • n/a

  • 3

Faciliteiten

  • Badkamer :

  • Toilet :

  • Keuken :

  • Woonkamer :

  • Internet beschikbaar :

  • Gedeeld

  • Gedeeld

  • Gedeeld

  • Gedeeld

  • Ja

  • Huisdieren :

  • Roken :

  • Parkeerplaats :

  • Fietsenstalling :

  • Verboden

  • Verboden

  • Niet beschikbaar

  • Niet beschikbaar

Locatie