header-logo2.png Huurflits

Huis Mannus frankenstraat in Almere

Mannus frankenstraat , 1325 LT Almere

€ 2.550,00 excl. G/W/E

Beschrijving

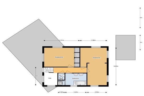
INDELING: Begane grond: Voortuin, entree, hal met vide, meterkast, toilet, toegang tot de woonkamer en de trap naar de eerste verdieping. Het toilet op de begane grond is voorzien van een wandcloset, wasbak, beige kleurige sanitair en betegeling. De woonkamer is ruim opgezet en heeft een speelse indeling. Door de vele rondingen en vele raampartijen is het een sfeervolle living met veel natuurlijke lichtinval. De ruime woonkamer is voorzien van een vaste kast met schuifdeuren, open haard en schuifpuien die toegang bieden tot de tuin en overdekt terras. De gehele begane grond heeft een marmeren vloer met vloerverwarming. De Luxe keuken met kookeiland is voorzien van een inductiekookplaat, plafondafzuiger met afstandsbediening en buitenmuurmotor, combi Quooker, koelkast, vaatwasser, hogedrukstoomoven met liftdeur, oven en veel opbergruimte. Op de begane grond bevindt zich tevens ook de eerste slaapkamer met een eigen afgesloten badkamer die voorzien is van een douche en wastafelmeubel. 1e verdieping: Overloop met toegang tot twee slaapkamers en een badkamer. De gehele eerste verdieping is voorzien van een laminaat vloer. De eerste slaapkamer is ca. 18 m2 groot. Deze slaapkamer heeft een kastenwand en is voorzien van schuifdeuren en verlichting. De tweede slaapkamer (voorheen 2 kamers) is ca. 24 m2 groot. De badkamer is geheel betegeld en voorzien van een ligbad/douche en 2 wastafels, designradiator, kast voor wasmachine, wasdroger en vloerverwarming. Er is een separaat toilet aanwezig op de eerste verdieping welke voorzien is van een wandcloset en wasbak. Ook is er een vliering aanwezig voor de nodige bergruimte.

Verstuur een bericht

Door een bericht te sturen kom je in contact met de aanbieder of makelaar van de woning.

Bericht versturen

Woningdetails

  • Huurprijs p.m. :

  • Oppervlakte :

  • Kamers :

  • Badkamers :

  • Slaapkamers :

  • € 2.550,00

  • 158 m2

  • 4

  • 1

  • 3

  • Woningtype :

  • Interieur :

  • Beschikbaar vanaf :

  • Beschikbaar tot :

  • Huisgenoot :

  • Huurwoning

  • n/a

  • 13-02-2026

  • n/a

  • 0

Faciliteiten

  • Badkamer :

  • Toilet :

  • Keuken :

  • Woonkamer :

  • Internet beschikbaar :

  • Privé

  • Privé

  • Privé

  • Privé

  • Ja

  • Huisdieren :

  • Roken :

  • Parkeerplaats :

  • Fietsenstalling :

  • Verboden

  • Toegestaan

  • Niet beschikbaar

  • Niet beschikbaar

Locatie