header-logo2.png Huurflits

Huis Van Nijenrodeweg in Amsterdam

Potvisstraat , 1035 HJ Amsterdam

€ 2.300,00 excl. G/W/E

Beschrijving

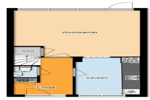
GESCHIKT VOOR EEN WERKEND(E) EXPAT SINGLE / STEL / FAMILIE Indeling Begane grond Via de voortuin bereikt u de eigen entree met hal en gastentoilet. De halfopen keuken is voorzien van alle benodigde (inbouw)apparatuur. De tuingerichte woonkamer is licht en ruim, en biedt via openslaande deuren direct toegang tot de achtertuin op het noordwesten, een fijne plek aan het water om tot rust te komen. Aan de voorzijde van de woning bevindt zich een praktische externe berging. Eerste verdieping Overloop met toegang tot twee ruime slaapkamers en de badkamer. De hoofdslaapkamer (ca. 15 m²) ligt aan de rustige achterzijde van de woning. De tweede slaapkamer bevindt zich aan de voorzijde. De centraal gelegen badkamer is uitgerust met een douche, wastafel, tweede toilet en aansluiting voor wasmachine en droger.

Verstuur een bericht

Door een bericht te sturen kom je in contact met de aanbieder of makelaar van de woning.

Bericht versturen

Woningdetails

  • Huurprijs p.m. :

  • Oppervlakte :

  • Kamers :

  • Badkamers :

  • Slaapkamers :

  • € 2.300,00

  • 85 m2

  • 3

  • 1

  • 2

  • Woningtype :

  • Interieur :

  • Beschikbaar vanaf :

  • Beschikbaar tot :

  • Huisgenoot :

  • Huurwoning

  • n/a

  • 01-03-2026

  • n/a

  • 0

Faciliteiten

  • Badkamer :

  • Toilet :

  • Keuken :

  • Woonkamer :

  • Internet beschikbaar :

  • Privé

  • Privé

  • Privé

  • Privé

  • Ja

  • Huisdieren :

  • Roken :

  • Parkeerplaats :

  • Fietsenstalling :

  • Verboden

  • Toegestaan

  • Niet beschikbaar

  • Niet beschikbaar

Locatie