header-logo2.png Huurflits

Appartement Sam van Houtenstraat in Amsterdam

Sam van Houtenstraat , 1067 JL Amsterdam

€ 2.500,00 excl. G/W/E

Beschrijving

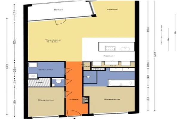
Indeling: Begane grond: Gemeenschappelijke, afgesloten entree met intercom, lift en trappenhuis. Vijfde verdieping: Galerij, entreeappartement, hal met meterkast, toilet en toegang tot twee slaapkamers aan de galerijzijde, berging met wasmachine en droger, centrale verwarming en mechanische ventilatie. De zeer ruime open woonkamer en keuken bevinden zich aan de achterzijde van het appartement. Er zijn meerdere zitgedeeltes. De moderne keuken is voorzien van alle moderne inbouwapparatuur, zoals een oven/magnetroncombinatie, vaatwasser, inductiekookplaat, koffiezetmachine en een Amerikaanse koelkast met groot vriesvak. Aangrenzend aan de woonkamer bevindt zich een groot balkon op het oosten, waar u kunt genieten van de ochtendzon en het groene uitzicht over de omgeving. De hoofdslaapkamer is voorzien van een comfortabel tweepersoonsbed en een open badkamer. De luxe, spa-achtige badkamer is uitgerust met een jacuzzi, een inloopdouche met regendouchekop en infrarood zonnedouche, een dubbele wastafel met opbergruimte en een design handdoekradiator. Er is een tweede slaapkamer die ideaal gebruikt kan worden als kantoorruimte of tweede (logeer)slaapkamer.

Verstuur een bericht

Door een bericht te sturen kom je in contact met de aanbieder of makelaar van de woning.

Bericht versturen

Woningdetails

  • Huurprijs p.m. :

  • Oppervlakte :

  • Kamers :

  • Badkamers :

  • Slaapkamers :

  • € 2.500,00

  • 97 m2

  • 3

  • 1

  • 2

  • Woningtype :

  • Interieur :

  • Beschikbaar vanaf :

  • Beschikbaar tot :

  • Huisgenoot :

  • Appartement

  • n/a

  • 15-03-2026

  • n/a

  • 0

Faciliteiten

  • Badkamer :

  • Toilet :

  • Keuken :

  • Woonkamer :

  • Internet beschikbaar :

  • Privé

  • Privé

  • Privé

  • Privé

  • Ja

  • Huisdieren :

  • Roken :

  • Parkeerplaats :

  • Fietsenstalling :

  • Toegestaan

  • Toegestaan

  • Niet beschikbaar

  • Niet beschikbaar

Locatie