Huurflits
Caissondam , 6846 TG Arnhem
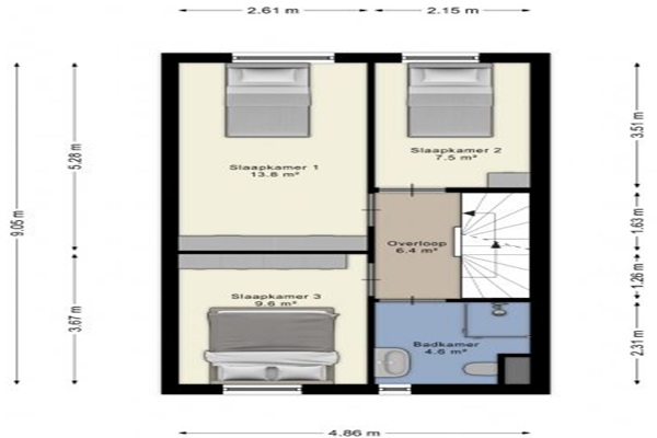
Via de entree kom je in de hal met meterkast, toiletruimte en de trapopgang naar de eerste verdieping. Vanuit hier stap je de ruime en heerlijk lichte woonkamer binnen. Dankzij de grote ramen van vloer tot plafond stroomt het daglicht rijkelijk naar binnen en ontstaat er een prettige verbinding met buiten. Aan de voorzijde bevindt zich de moderne, glanswitte keuken met een strak composiet werkblad. De keuken is compleet uitgerust met hoogwaardige inbouwapparatuur, waaronder een combimagnetron, 5-pits inductiekookplaat, koel-vriescombinatie, afzuigkap en vaatwasser. De woning beschikt over een fijne achtertuin op het oosten, waar je in de ochtend en vroege middag van de zon kunt genieten. Op eigen terrein is bovendien een praktische buitenberging aanwezig voor fietsen en extra opslag. Op de eerste verdieping bevinden zich drie comfortabele slaapkamers. De kamers zijn prettig van formaat en genieten van veel daglicht. De moderne badkamer is compleet uitgevoerd en beschikt over een douche, toilet en wastafel. Een praktische en comfortabele verdieping die perfect aansluit bij de woonwensen van nu. Via een vaste trap bereik je de zolderverdieping. Een veelzijdige ruimte die je geheel naar eigen wens kunt inrichten, bijvoorbeeld als hobbyruimte, werkplek of extra bergruimte. De keuze is aan jou.
Huurprijs p.m. :
Oppervlakte :
Kamers :
Badkamers :
Slaapkamers :
€ 1.625,00
115 m2
4
1
3
Woningtype :
Interieur :
Beschikbaar vanaf :
Beschikbaar tot :
Huisgenoot :
Huurwoning
n/a
01-05-2026
n/a
0
Badkamer :
Toilet :
Keuken :
Woonkamer :
Internet beschikbaar :
Privé
Privé
Privé
Privé
Ja
Huisdieren :
Roken :
Parkeerplaats :
Fietsenstalling :
Toegestaan
Toegestaan
Niet beschikbaar
Niet beschikbaar