Huurflits
Milovan Djilasplein , 1102 JZ Amsterdam
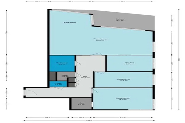
Indeling: Gemeenschappelijke ruime en verzorgde entree op de begane grond. De lift brengt u comfortabel naar de vierde verdieping, entree van het appartement, toilet, berging, ruime hal met toegang tot de 2 slaapkamers, badkamer met douche, toilet en wastafel, wasruimte. De ruime woonkamer met aangrenzend balkon is heerlijk licht dankzij de zuidoost oriëntatie en de grote raampartijen. De keuken is luxe uitgevoerd en voorzien van diverse inbouwapparatuur. –Niet geschikt voor studenten –Niet geschikt voor woningdelers, gezinnen zijn welkom
Huurprijs p.m. :
Oppervlakte :
Kamers :
Badkamers :
Slaapkamers :
€ 2.250,00
105 m2
3
1
2
Woningtype :
Interieur :
Beschikbaar vanaf :
Beschikbaar tot :
Huisgenoot :
Appartement
n/a
07-02-2026
n/a
0
Badkamer :
Toilet :
Keuken :
Woonkamer :
Internet beschikbaar :
Privé
Privé
Privé
Privé
Ja
Huisdieren :
Roken :
Parkeerplaats :
Fietsenstalling :
Verboden
Verboden
Niet beschikbaar
Niet beschikbaar