header-logo2.png Huurflits

Appartement Van Hattumstraat in Zwolle

Van Hattumstraat , 8011 MR Zwolle

€ 1.400,00 excl. G/W/E

Beschrijving

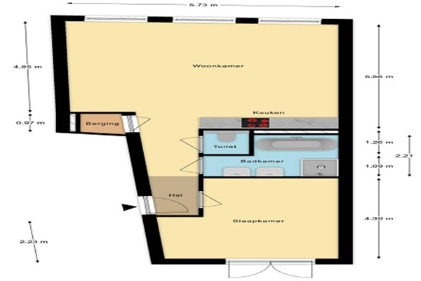
Deze moderne city-apartments ookwel de de "Van Hattum Suites" Alles is aanwezig: een complete keuken, stijlvolle badkamer, comfortabele slaapkamer en een lichte, sfeervolle woonkamer. Dankzij de hoge afwerkingskwaliteit en de luxe inrichting ervaar je het ultieme wooncomfort, precies waar je dat wilt: in het kloppend hart van Zwolle.

Verstuur een bericht

Door een bericht te sturen kom je in contact met de aanbieder of makelaar van de woning.

Bericht versturen

Woningdetails

  • Huurprijs p.m. :

  • Oppervlakte :

  • Kamers :

  • Badkamers :

  • Slaapkamers :

  • € 1.400,00

  • 65 m2

  • 2

  • 1

  • 1

  • Woningtype :

  • Interieur :

  • Beschikbaar vanaf :

  • Beschikbaar tot :

  • Huisgenoot :

  • Appartement

  • n/a

  • 06-02-2026

  • n/a

  • 0

Faciliteiten

  • Badkamer :

  • Toilet :

  • Keuken :

  • Woonkamer :

  • Internet beschikbaar :

  • Privé

  • Privé

  • Privé

  • Privé

  • Ja

  • Huisdieren :

  • Roken :

  • Parkeerplaats :

  • Fietsenstalling :

  • Toegestaan

  • Toegestaan

  • Niet beschikbaar

  • Niet beschikbaar

Locatie