header-logo2.png Huurflits

Appartement Kruiskade in Rotterdam

Kruiskade , 3012 EH Rotterdam

€ 1.470,00 excl. G/W/E

Beschrijving

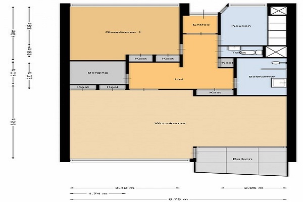
Het appartement wordt kaal opgeleverd en is voorzien van een keuken zonder apparatuur en badkamer met bad en wastafel. De getoonde foto's zijn van een modelwoning. Servicekosten: € 50,- per maand. Dit is wonen in het bruisende hart van Rotterdam: direct naast deDoelen, de Rotterdamse Schouwburg, diverse bioscopen en op loopafstand van de grote winkelbedrijven, het Beursplein en het Centraal Station. En toch alle rust en gemak van een stadsappartement.

Verstuur een bericht

Door een bericht te sturen kom je in contact met de aanbieder of makelaar van de woning.

Bericht versturen

Woningdetails

  • Huurprijs p.m. :

  • Oppervlakte :

  • Kamers :

  • Badkamers :

  • Slaapkamers :

  • € 1.470,00

  • 78 m2

  • 2

  • 1

  • 1

  • Woningtype :

  • Interieur :

  • Beschikbaar vanaf :

  • Beschikbaar tot :

  • Huisgenoot :

  • Appartement

  • n/a

  • 06-02-2026

  • n/a

  • 0

Faciliteiten

  • Badkamer :

  • Toilet :

  • Keuken :

  • Woonkamer :

  • Internet beschikbaar :

  • Privé

  • Privé

  • Privé

  • Privé

  • Ja

  • Huisdieren :

  • Roken :

  • Parkeerplaats :

  • Fietsenstalling :

  • Toegestaan

  • Toegestaan

  • Niet beschikbaar

  • Niet beschikbaar

Locatie