Huurflits
Stadhoudersring , 2713 GP Zoetermeer
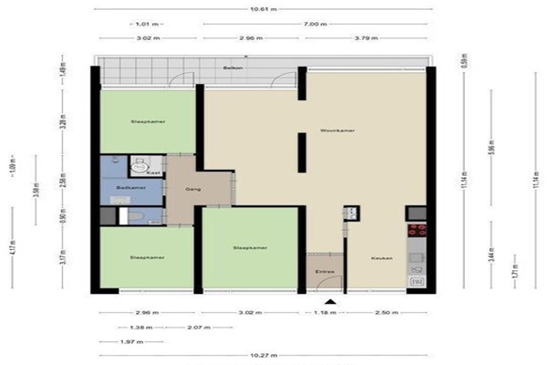
Afgesloten centrale hal met brievenbussen en bellentableau. Middels de lift en de galerij bereikt u het appartement op de 2e verdieping. Bij binnenkomst van de woning treft u de tussenhal aan, met mogelijkheid voor een garderobe. Vanuit de hal heeft u toegang tot alle andere vertrekken zoals de woonkamer, slaapkamers, badkamer, toilet en berging. Wonen - Riant wonen met veel daglicht De woonkamer van deze woning is ca. 41 m2 en voorzien van een laminaatvloer en grotendeels dubbelglas in houten kozijnen. U heeft met dank aan de grote ramen zowel tijdens bewolkte als zonnige dagen voldoende daglicht waar u optimaal van kunt genieten. U beschikt in deze woning over een open keuken welke u eenvoudig kunt betreden vanuit de woonkamer. De ruime woon-/leefruimte met open keuken is voorzien van diverse inbouwapparatuur te weten: 4-pits inductie kookplaat met afzuiging, combi-oven, vaatwasser en een koel-/vrieskast combinatie. Tevens beschikt de keuken over voldoende lades, kasten en een groot werkblad om uw keukenspullen op te bergen en heerlijk uitgebreid te kunnen koken. Sanitair – Modern en strak afgewerkt De badkamer is voorzien van een douche (rainshower en handdouche) wastafelmeubel met spiegelkasten, inbouwspots en antraciet vloertegels. Daarnaast bevindt zich een separaat modern toilet met vrijhangende toiletpot, fontein en dezelfde wand- en vloeruitvoering als de badkamer. In dit appartement bevinden zich 3 slaapkamers die allemaal zijn voorzien van pvc vloer en dubbele beglazing in kunstof kozijnen. De ruimste slaapkamer van ca. 13 m2 is gesitueerd aan de voorzijde van de woning. De tweede slaapkamer is gesitueerd naast de grootste slaapkamer en de derde en tevens de laatste slaapkamer bevindt zich aan de achterzijde. Overigens zijn alle slaapkamers voorzien van een ruime oppervlakte waarin makkelijk een grote kast geplaatst kan worden. Opbergen - Voldoende bergruimte Voor het opbergen van uw spullen beschikt de woning over een royale bergkast. Tevens beschikt de woning over een berging in de onderbouw. -Woningdelers kunnen helaas niet reageren op deze; -Garantstellers worden niet geaccepteerd;
Huurprijs p.m. :
Oppervlakte :
Kamers :
Badkamers :
Slaapkamers :
€ 1.725,00
107 m2
5
1
3
Woningtype :
Interieur :
Beschikbaar vanaf :
Beschikbaar tot :
Huisgenoot :
Appartement
n/a
03-02-2026
n/a
0
Badkamer :
Toilet :
Keuken :
Woonkamer :
Internet beschikbaar :
Privé
Privé
Privé
Privé
Ja
Huisdieren :
Roken :
Parkeerplaats :
Fietsenstalling :
Toegestaan
Toegestaan
Niet beschikbaar
Niet beschikbaar