Huurflits
Kromstraat , 2611 EP Delft
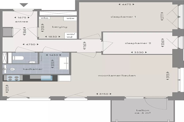
Indeling Eigen entree op de begane grond. Trap naar eerste verdieping. Lichte woonkamer met open keuken aan de achterzijde van de woning. De keuken is voorzien van een 4-pits gaskookplaat, vaatwasser, een RVS afzuigkap en een wastafel. Het balkon is aan de achterzijde. Naast de keuken is er ook nog een voorraadkast. Op de gang is een toilet. Ruime overloop met toegang tot alle vertrekken op deze verdieping. Twee ruime en lichte slaapkamers. Volledig betegelde badkamer met douche, wastafel met spiegel en designradiator. Aparte kast met wasmachine-aansluiting en CV-opstelling. De woning is niet geschikt voor woningdelers
Huurprijs p.m. :
Oppervlakte :
Kamers :
Badkamers :
Slaapkamers :
€ 1.109,00
68 m2
3
1
2
Woningtype :
Interieur :
Beschikbaar vanaf :
Beschikbaar tot :
Huisgenoot :
Appartement
n/a
01-04-2026
n/a
0
Badkamer :
Toilet :
Keuken :
Woonkamer :
Internet beschikbaar :
Privé
Privé
Privé
Privé
Ja
Huisdieren :
Roken :
Parkeerplaats :
Fietsenstalling :
Verboden
Verboden
Niet beschikbaar
Niet beschikbaar