Huurflits
Snelliusstraat , 9727 JN Groningen
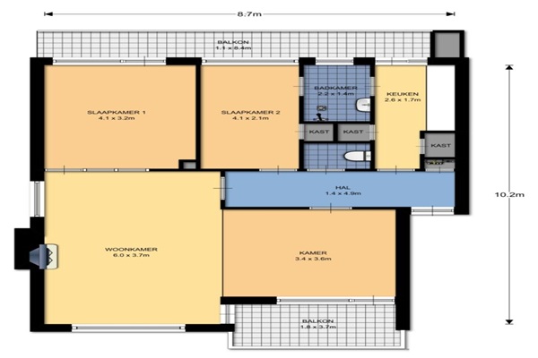
Dit appartement mag enkel verhuurd worden aan studenten die momenteel nog niet in Groningen wonen. Wij vragen daarom ook een bewijs van inschrijving van de studie. Indeling appartement: entree, hal met meterkast, toilet met fontein, woonkamer met zijkamer, 2 slaapkamers keuken met toegang tot doucheruimte, maar liefst twee balkons; één aan de voorkant en één aan de achterzijde. Het appartement heeft een inpandige fietsenberging.
Huurprijs p.m. :
Oppervlakte :
Kamers :
Badkamers :
Slaapkamers :
€ 769,00
70 m2
3
1
2
Woningtype :
Interieur :
Beschikbaar vanaf :
Beschikbaar tot :
Huisgenoot :
Appartement
n/a
16-02-2026
n/a
0
Badkamer :
Toilet :
Keuken :
Woonkamer :
Internet beschikbaar :
Privé
Privé
Privé
Privé
Ja
Huisdieren :
Roken :
Parkeerplaats :
Fietsenstalling :
Toegestaan
Toegestaan
Niet beschikbaar
Niet beschikbaar