header-logo2.png Huurflits

Appartement Camperstraat in Amsterdam

Camperstraat , 1091 DW Amsterdam

€ 1.070,00 excl. G/W/E

Beschrijving

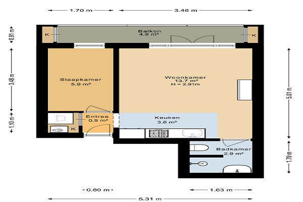
De woning ligt op de eerste verdieping welke per trap bereikbaar is. Je komt binnen in een hal met een ruimte voor de CV en de aansluiting voor een wasmachine. Via deze hal kom je ook in de slaapkamer. De woonkamer met open keuken geven toegang tot het balkon. De keuken is voorzien van een gaskookplaat, koelkast, combi-oven, vaatwasser en een afzuigkap. De badkamer is voorzien van wastafel, douche en toilet.

Verstuur een bericht

Door een bericht te sturen kom je in contact met de aanbieder of makelaar van de woning.

Bericht versturen

Woningdetails

  • Huurprijs p.m. :

  • Oppervlakte :

  • Kamers :

  • Badkamers :

  • Slaapkamers :

  • € 1.070,00

  • 29 m2

  • 2

  • 1

  • 1

  • Woningtype :

  • Interieur :

  • Beschikbaar vanaf :

  • Beschikbaar tot :

  • Huisgenoot :

  • Appartement

  • n/a

  • 28-01-2026

  • n/a

  • 0

Faciliteiten

  • Badkamer :

  • Toilet :

  • Keuken :

  • Woonkamer :

  • Internet beschikbaar :

  • Privé

  • Privé

  • Privé

  • Privé

  • Ja

  • Huisdieren :

  • Roken :

  • Parkeerplaats :

  • Fietsenstalling :

  • Verboden

  • Toegestaan

  • Niet beschikbaar

  • Niet beschikbaar

Locatie