Huurflits
Prinsestraat , 2513 BE Den Haag
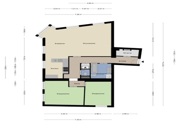
Toegang tot het gebouw: de entree heeft een beveiligde lobby met intercom. Centrale hal met open, licht trappenhuis. Het appartement zelf bevindt zich op de tweede verdieping. Eenmaal binnen vindt u een L-vormige hal met glazen paneeldeuren die leiden naar de ruime woon-/eetkamer en een moderne, volledig uitgeruste open keuken met een grote oven en een koelkast/vriezer in retrostijl; toilet; veel opbergruimte. Beide slaapkamers bevinden zich aan de achterzijde van het appartement. De hoofdslaapkamer heeft een grote inbouwkast; de tweede slaapkamer/studeerkamer. Badkamer met bad, extra grote wastafel met meubel en verlichte spiegel. Grote berging in de kelder.
Huurprijs p.m. :
Oppervlakte :
Kamers :
Badkamers :
Slaapkamers :
€ 2.300,00
112 m2
3
1
2
Woningtype :
Interieur :
Beschikbaar vanaf :
Beschikbaar tot :
Huisgenoot :
Appartement
n/a
26-01-2026
n/a
0
Badkamer :
Toilet :
Keuken :
Woonkamer :
Internet beschikbaar :
Privé
Privé
Privé
Privé
Ja
Huisdieren :
Roken :
Parkeerplaats :
Fietsenstalling :
Toegestaan
Toegestaan
Niet beschikbaar
Niet beschikbaar