header-logo2.png Huurflits

Appartement Maria Vincentiastraat in Delft

Maria Vincentiastraat , 2625 ZK Delft

€ 1.416,00 excl. G/W/E

Beschrijving

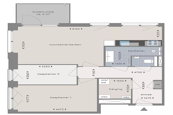
Dit appartement heeft een praktische indeling met twee slaapkamers, een woonkamer met open keuken, een badkamer, separate toiletruimte, berging en een buitenruimte van circa 6 m². De woonkamer en keuken vormen samen één open ruimte met daglichttoetreding via meerdere ramen en directe toegang tot de buitenruimte. De keuken is opgesteld langs de wand en voorzien van aansluitingen voor inbouwapparatuur. De woning beschikt over twee slaapkamers van verschillende afmetingen, geschikt voor gebruik als hoofd- en tweede slaapkamer of werkruimte. De badkamer is ingericht met ligbad en wastafel. Het toilet is separaat bereikbaar vanuit de hal. In de interne berging zijn aansluitingen aanwezig voor wasmachine en droger en is plaats voor technische installaties. De entree biedt toegang tot alle vertrekken.

Verstuur een bericht

Door een bericht te sturen kom je in contact met de aanbieder of makelaar van de woning.

Bericht versturen

Woningdetails

  • Huurprijs p.m. :

  • Oppervlakte :

  • Kamers :

  • Badkamers :

  • Slaapkamers :

  • € 1.416,00

  • 73 m2

  • 3

  • 1

  • 2

  • Woningtype :

  • Interieur :

  • Beschikbaar vanaf :

  • Beschikbaar tot :

  • Huisgenoot :

  • Appartement

  • n/a

  • 01-03-2026

  • n/a

  • 0

Faciliteiten

  • Badkamer :

  • Toilet :

  • Keuken :

  • Woonkamer :

  • Internet beschikbaar :

  • Privé

  • Privé

  • Privé

  • Privé

  • Ja

  • Huisdieren :

  • Roken :

  • Parkeerplaats :

  • Fietsenstalling :

  • Toegestaan

  • Toegestaan

  • Niet beschikbaar

  • Niet beschikbaar

Locatie