Huurflits
Sint Martinusstraat , 5931 CW Tegelen
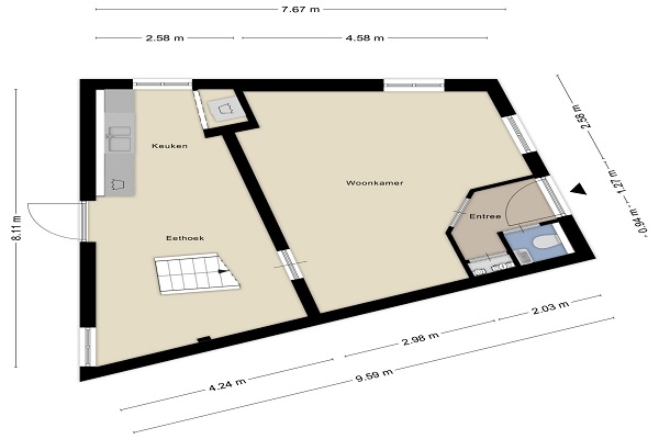
Ingang via de entree aan de voorzijde van het gebouw. Op de begane grond een grote woonkamer (ca. 25,50 m²) met aansluitend een aparte ruime woonkeuken (ca. 20 m²). Boven bevinden zich twee slaapkamers van respectievelijk (ca. 20,5 m² ) en (ca. 10 m² ). Tevens een badkamer. In 1 van de slaapkamers zit een vide voor opslag (ca. 4,5 m²).
Huurprijs p.m. :
Oppervlakte :
Kamers :
Badkamers :
Slaapkamers :
€ 1.000,00
100 m2
3
1
2
Woningtype :
Interieur :
Beschikbaar vanaf :
Beschikbaar tot :
Huisgenoot :
Huurwoning
n/a
24-01-2026
n/a
0
Badkamer :
Toilet :
Keuken :
Woonkamer :
Internet beschikbaar :
Privé
Privé
Privé
Privé
Ja
Huisdieren :
Roken :
Parkeerplaats :
Fietsenstalling :
Toegestaan
Toegestaan
Niet beschikbaar
Niet beschikbaar