header-logo2.png Huurflits

Appartement Espoortstraat in Enschede

Espoortstraat , 7511 SC Enschede

€ 699,00 excl. G/W/E

Beschrijving

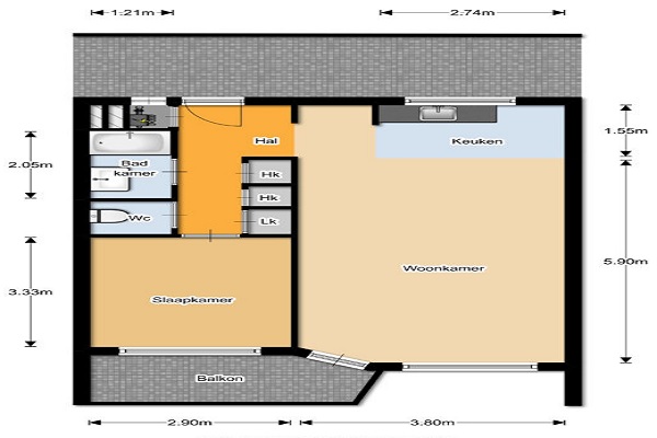
Dit 2-kamer appartement aan de Espoortstraat ligt in een rustige buurt met veel groen, vlak bij de binnenstad van Enschede. Een praktische woning met een centrale ligging! Indeling: •Woonkamer met toegang tot een balkon. •Keuken (gesloten of half open, afhankelijk van het type). •Badkamer met douche en apart toilet. •1 slaapkamer.

Verstuur een bericht

Door een bericht te sturen kom je in contact met de aanbieder of makelaar van de woning.

Bericht versturen

Woningdetails

  • Huurprijs p.m. :

  • Oppervlakte :

  • Kamers :

  • Badkamers :

  • Slaapkamers :

  • € 699,00

  • 56 m2

  • 2

  • 1

  • 1

  • Woningtype :

  • Interieur :

  • Beschikbaar vanaf :

  • Beschikbaar tot :

  • Huisgenoot :

  • Appartement

  • n/a

  • 01-03-2026

  • n/a

  • 0

Faciliteiten

  • Badkamer :

  • Toilet :

  • Keuken :

  • Woonkamer :

  • Internet beschikbaar :

  • Privé

  • Privé

  • Privé

  • Privé

  • Ja

  • Huisdieren :

  • Roken :

  • Parkeerplaats :

  • Fietsenstalling :

  • Toegestaan

  • Toegestaan

  • Niet beschikbaar

  • Niet beschikbaar

Locatie