Huurflits
Ramstraat , 3581 HP Utrecht
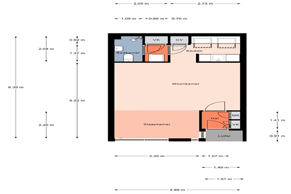
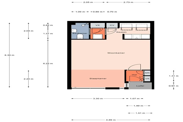
De woning beschikt over twee slaapkamers, gelegen aan zowel de voor- als achterzijde, wat zorgt voor een prettige indeling en extra rust. De nieuwe keuken is modern uitgevoerd en van alle gemakken voorzien, waaronder een Quooker. De douche en het toilet bevinden zich praktisch in de gang. Aan de achterzijde ligt de zonnige tuin op het westen: een fijne plek om ’s middags en ’s avonds van de zon te genieten, of om na het werk lekker buiten te zitten. De woning is recent gerenoveerd en van alle gemakken voorzien, zo beschikt het appartement over een energielabel A++ en zonnepanelen.
Huurprijs p.m. :
Oppervlakte :
Kamers :
Badkamers :
Slaapkamers :
€ 2.350,00
64 m2
3
1
2
Woningtype :
Interieur :
Beschikbaar vanaf :
Beschikbaar tot :
Huisgenoot :
Appartement
n/a
21-01-2026
n/a
0
Badkamer :
Toilet :
Keuken :
Woonkamer :
Internet beschikbaar :
Privé
Privé
Privé
Privé
Ja
Huisdieren :
Roken :
Parkeerplaats :
Fietsenstalling :
Toegestaan
Toegestaan
Niet beschikbaar
Niet beschikbaar