header-logo2.png Huurflits

Huis Stan Laurelstraat in Almere

Stan Laurelstraat , Almere

€ 2.300,00 excl. G/W/E

Beschrijving

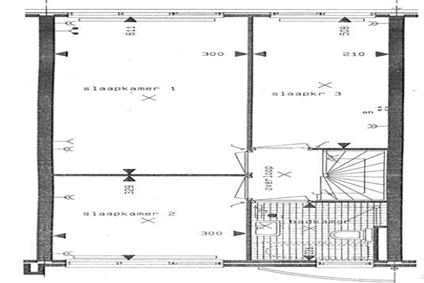
Indeling: Via de entree betreedt u de woning. In de hal bevinden zich de meterkast, het toilet en de trapopgang naar de eerste verdieping. Het moderne toilet is voorzien van een fontein en elektrische ventilatie. Vanuit de hal heeft u toegang tot de tuingerichte woonkamer, die door de grote raampartij geniet van veel natuurlijke lichtinval en een prettig ruimtelijk gevoel geeft. Via een deur is er directe toegang tot de veranda, waardoor binnen en buiten mooi in elkaar overlopen. Aansluitend bevindt zich de ruim opgezette keuken, welke is uitgerust met een losse koelkast, vaatwasser, oven, kookplaat en afzuigkap. De gehele begane grond is afgewerkt met een nette PVC-vloer in visgraatpatroon, wat het huis een moderne uitstraling geeft. Het gehele huis is ongeveer twee maanden geleden gerenoveerd. De achtertuin is gunstig gelegen en onderhoudsvriendelijk aangelegd met bestrating. Hierdoor is de tuin eenvoudig in gebruik en biedt deze volop mogelijkheden om een gezellige zit- of loungehoek te creëren. Tevens beschikt de tuin over een houten berging voorzien van elektra, ideaal voor het stallen van fietsen of tuingereedschap. De tuin is omsloten door een houten schutting en beschikt over een praktische achterom. Op de eerste verdieping bevindt zich de overloop met toegang tot drie slaapkamers en de badkamer. De slaapkamers zijn van goed formaat en bieden diverse indelingsmogelijkheden. De royale badkamer is compleet ingericht en voorzien van onder andere een inloopdouche, een wandcloset en een wastafelmeubel. Eén van de slaapkamers is gelegen aan de voorzijde van de woning en beschikt over een charmant Frans balkon, wat zorgt voor extra licht en een prettig uitzicht. Via de vaste trap bereikt u de tweede verdieping. Op de overloop is ruimte gecreëerd voor het plaatsen van een wasmachine en droger. Vanaf hier heeft u toegang tot de vierde slaapkamer. Deze slaapkamer is voorzien van een dakkapel, wat zorgt voor extra lichtinval en een ruimtelijk gevoel. Daarnaast is er voldoende bergruimte aanwezig achter de knieschotten, waardoor deze verdieping zowel praktisch als comfortabel in gebruik is.

Verstuur een bericht

Door een bericht te sturen kom je in contact met de aanbieder of makelaar van de woning.

Bericht versturen

Woningdetails

  • Huurprijs p.m. :

  • Oppervlakte :

  • Kamers :

  • Badkamers :

  • Slaapkamers :

  • € 2.300,00

  • 110 m2

  • 5

  • 1

  • 4

  • Woningtype :

  • Interieur :

  • Beschikbaar vanaf :

  • Beschikbaar tot :

  • Huisgenoot :

  • Huurwoning

  • n/a

  • 17-01-2026

  • n/a

  • 0

Faciliteiten

  • Badkamer :

  • Toilet :

  • Keuken :

  • Woonkamer :

  • Internet beschikbaar :

  • Privé

  • Privé

  • Privé

  • Privé

  • Ja

  • Huisdieren :

  • Roken :

  • Parkeerplaats :

  • Fietsenstalling :

  • Verboden

  • Toegestaan

  • Niet beschikbaar

  • Niet beschikbaar

Locatie