header-logo2.png Huurflits

Appartement Klaprozenweg in Amsterdam

Klaprozenweg , 1032 KD Amsterdam

€ 1.858,00 excl. G/W/E

Beschrijving

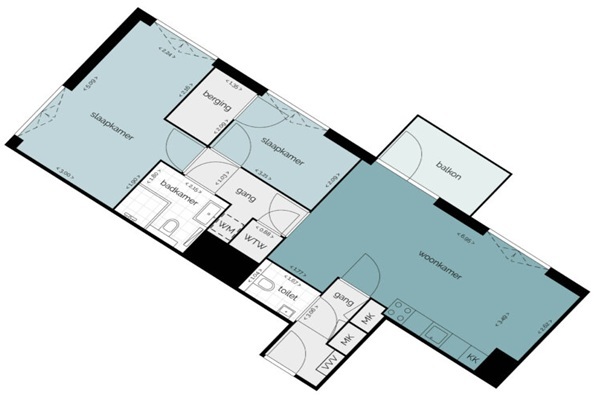
Dit appartement is ideaal voor wie op zoek is naar een ruime en moderne woning. Dankzij de grote ramen geniet je van veel natuurlijk licht. De woning is helemaal: de keuken en badkamer zijn volledig ingericht. De keuken is voorzien van een inductiekookplaat, afzuigkap, ingebouwde koelkast met vriesvak en geïntegreerde vaatwasser. Er zijn twee slaapkamers met grote ramen, een badkamer met douche, wastafel en toilet, en een aparte berging inclusief plek voor de wasmachine.

Verstuur een bericht

Door een bericht te sturen kom je in contact met de aanbieder of makelaar van de woning.

Bericht versturen

Woningdetails

  • Huurprijs p.m. :

  • Oppervlakte :

  • Kamers :

  • Badkamers :

  • Slaapkamers :

  • € 1.858,00

  • 67 m2

  • 3

  • 1

  • 2

  • Woningtype :

  • Interieur :

  • Beschikbaar vanaf :

  • Beschikbaar tot :

  • Huisgenoot :

  • Appartement

  • n/a

  • 01-02-2026

  • n/a

  • 0

Faciliteiten

  • Badkamer :

  • Toilet :

  • Keuken :

  • Woonkamer :

  • Internet beschikbaar :

  • Privé

  • Privé

  • Privé

  • Privé

  • Ja

  • Huisdieren :

  • Roken :

  • Parkeerplaats :

  • Fietsenstalling :

  • Toegestaan

  • Toegestaan

  • Niet beschikbaar

  • Niet beschikbaar

Locatie