Huurflits
Noteboomstraat , 8922 AJ Leeuwarden
Huurprijs p.m. :
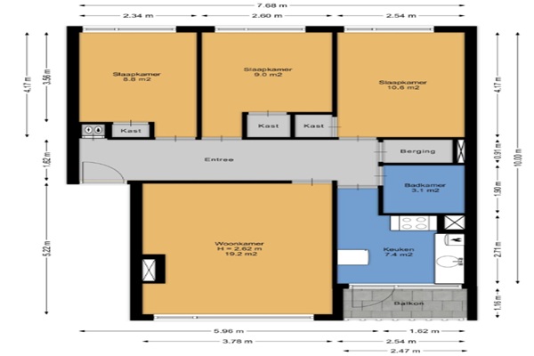
Oppervlakte :
Kamers :
Badkamers :
Slaapkamers :
€ 975,00
69 m2
3
1
2
Woningtype :
Interieur :
Beschikbaar vanaf :
Beschikbaar tot :
Huisgenoot :
Huurwoning
n/a
15-01-2026
n/a
0
Badkamer :
Toilet :
Keuken :
Woonkamer :
Internet beschikbaar :
Privé
Privé
Privé
Privé
Ja
Huisdieren :
Roken :
Parkeerplaats :
Fietsenstalling :
Verboden
Toegestaan
Niet beschikbaar
Niet beschikbaar