header-logo2.png Huurflits

Appartement Rubensstraat in Amsterdam

Rubensstraat , 1077 MZ Amsterdam

€ 2.850,00 excl. G/W/E

Beschrijving

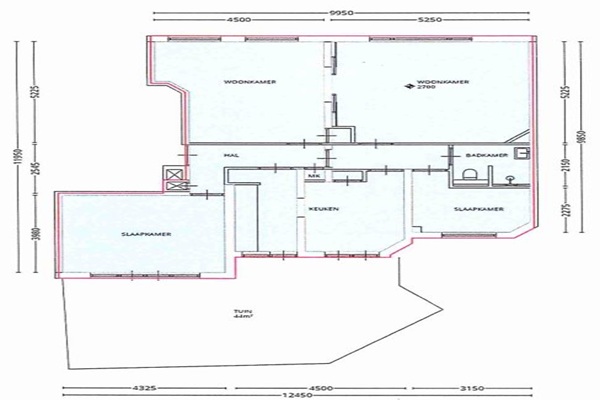
NIET GESCHIKT VOOR WONINGDELERS. INDELING Entree, ruime hal, entree op de begane grond; Gang, ruime woonkamer aan de voorzijde met schuifdeuren, woonkeuken en 2 slaapkamers aan de achterzijde, met allen toegang tot de ruime tuin. Badkamer voorzien van toilet, douche en wastafel. Geweldige tuin van bijna 45 M ² waar je zomers lekker kan genieten en waar je voldoende ruimte hebt voor grote eettafel en lounge banken.

Verstuur een bericht

Door een bericht te sturen kom je in contact met de aanbieder of makelaar van de woning.

Bericht versturen

Woningdetails

  • Huurprijs p.m. :

  • Oppervlakte :

  • Kamers :

  • Badkamers :

  • Slaapkamers :

  • € 2.850,00

  • 121 m2

  • 4

  • 1

  • 2

  • Woningtype :

  • Interieur :

  • Beschikbaar vanaf :

  • Beschikbaar tot :

  • Huisgenoot :

  • Appartement

  • n/a

  • 14-01-2026

  • n/a

  • 0

Faciliteiten

  • Badkamer :

  • Toilet :

  • Keuken :

  • Woonkamer :

  • Internet beschikbaar :

  • Privé

  • Privé

  • Privé

  • Privé

  • Ja

  • Huisdieren :

  • Roken :

  • Parkeerplaats :

  • Fietsenstalling :

  • Toegestaan

  • Toegestaan

  • Niet beschikbaar

  • Niet beschikbaar

Locatie