header-logo2.png Huurflits

Huis Donderbergweg in Roermond

Donderbergweg , 6043 JD Roermond

€ 1.175,00 excl. G/W/E

Beschrijving

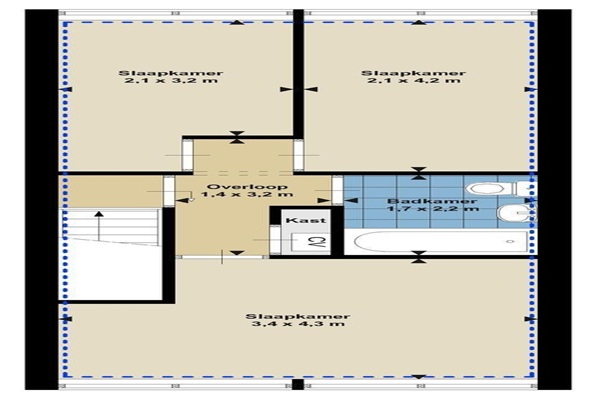
Bij de entree vind je een ruime hal die je toegang geeft tot het gastentoilet, de eerste verdieping, woon-tuinkamer met toegang naar de achtertuin en de keuken. De keuken is gelegen aan de voorzijde van de woning en beschikt over diverse inbouwapparatuur; koelkast, gasfornuis, afzuigkap en oven. Op de eerste verdieping vind je een ruime slaapkamer en badkamer. De badkamer is voorzien van bad, toilet, douche, wastafel en een wastafelmeubel. De slaapkamer kan ook gebruikt worden als royale woonkamer. Deze kamer is multifunctioneel te gebruiken. Op de tweede verdieping zijn er nog 3 comfortabele slaapkamers en een tweede badkamer voorzien van een bad, toilet en wastafel. De woning beschikt over een voor- en achtertuin. De achtertuin is onderhoudsvriendelijk aangelegd. Aan de achterzijde van de woning is een groenvoorziening met speeltoestellen. Ideaal voor jonge gezinnen.

Verstuur een bericht

Door een bericht te sturen kom je in contact met de aanbieder of makelaar van de woning.

Bericht versturen

Woningdetails

  • Huurprijs p.m. :

  • Oppervlakte :

  • Kamers :

  • Badkamers :

  • Slaapkamers :

  • € 1.175,00

  • 123 m2

  • 6

  • 2

  • 4

  • Woningtype :

  • Interieur :

  • Beschikbaar vanaf :

  • Beschikbaar tot :

  • Huisgenoot :

  • Huurwoning

  • n/a

  • 14-01-2026

  • n/a

  • 0

Faciliteiten

  • Badkamer :

  • Toilet :

  • Keuken :

  • Woonkamer :

  • Internet beschikbaar :

  • Privé

  • Privé

  • Privé

  • Privé

  • Ja

  • Huisdieren :

  • Roken :

  • Parkeerplaats :

  • Fietsenstalling :

  • Toegestaan

  • Toegestaan

  • Niet beschikbaar

  • Niet beschikbaar

Locatie