header-logo2.png Huurflits

Appartement Catharijnekade in Utrecht

Catharijnekade , 3511 RT Utrecht

€ 1.895,00 excl. G/W/E

Beschrijving

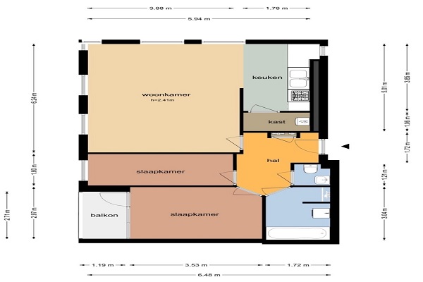
Indeling: Afgesloten centrale hal met brievenbussen, lift en trapopgang naar de verdiepingen. De entree van het appartement is gelegen op de begane grond. Men komt binnen in de gang. Via deze gang toegang tot alle vertrekken. Hier bevinden zich o.a. ook de meterkast, de toiletruimte en de inpandige badkamer. Aan de rechterzijde heerlijke lichte woonkamer met doorloop naar de keuken. Ruime moderne keuken voorzien van diverse inbouwapparatuur. Achter de keuken een vaste kast met opstelplaats voor de CV ketel alsmede de Mechanische ventilatie unit. Aan de achterzijde van het appartement zijn de twee slaapkamers waarvan er een is voorzien van een vaste kast en deur naar het balkon. De heerlijke lichte woonkamer heeft diverse ‘uitkijkpunten’ op de vernieuwde Singel. De inpandige badkamer is voorzien van wasmeubel, ligbad en separate douche met thermostaat. Berging gelegen nabij de gemeenschappelijke binnentuin aan de achterzijde. -Geschikt voor 1 persoon of een werkend stel; -NIET GESCHIKT VOOR STUDENTEN;

Verstuur een bericht

Door een bericht te sturen kom je in contact met de aanbieder of makelaar van de woning.

Bericht versturen

Woningdetails

  • Huurprijs p.m. :

  • Oppervlakte :

  • Kamers :

  • Badkamers :

  • Slaapkamers :

  • € 1.895,00

  • 66 m2

  • 3

  • 1

  • 2

  • Woningtype :

  • Interieur :

  • Beschikbaar vanaf :

  • Beschikbaar tot :

  • Huisgenoot :

  • Appartement

  • n/a

  • 01-02-2026

  • n/a

  • 0

Faciliteiten

  • Badkamer :

  • Toilet :

  • Keuken :

  • Woonkamer :

  • Internet beschikbaar :

  • Privé

  • Privé

  • Privé

  • Privé

  • Ja

  • Huisdieren :

  • Roken :

  • Parkeerplaats :

  • Fietsenstalling :

  • Verboden

  • Verboden

  • Niet beschikbaar

  • Niet beschikbaar

Locatie