header-logo2.png Huurflits

Appartement Woubruggestraat in Amsterdam

Woubruggestraat , 1059 AW Amsterdam

€ 2.300,00 excl. G/W/E

Beschrijving

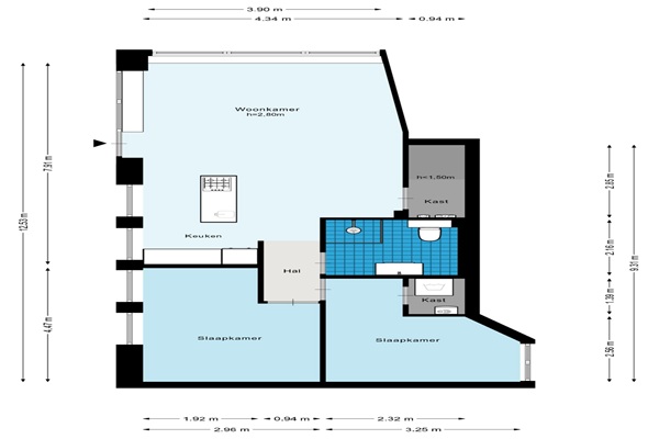
Indeling De ruime woonkamer heeft dankzij de hoekligging en tevens grote raampartijen veel natuurlijk lichtinval. De open keuken met kook-/ spoeleiland is voorzien van diverse inbouwapparatuur als een koelkast, vriezer, vaatwasser, oven en gasfornuis. Aan de achterzijde bevinden zich de 2 slaapkamers. De strakke badkamer is voorzien van een inloopdouche, toilet en wastafel met meubel. Voor de wasmachine- /droogcombinatie is een apart washok. Alle vertrekken zijn voorzien van een mooie hardhouten vloer. Geschikt voor woningdelers, maximaal 2 personen;

Verstuur een bericht

Door een bericht te sturen kom je in contact met de aanbieder of makelaar van de woning.

Bericht versturen

Woningdetails

  • Huurprijs p.m. :

  • Oppervlakte :

  • Kamers :

  • Badkamers :

  • Slaapkamers :

  • € 2.300,00

  • 65 m2

  • 3

  • 1

  • 2

  • Woningtype :

  • Interieur :

  • Beschikbaar vanaf :

  • Beschikbaar tot :

  • Huisgenoot :

  • Appartement

  • n/a

  • 10-01-2026

  • n/a

  • 0

Faciliteiten

  • Badkamer :

  • Toilet :

  • Keuken :

  • Woonkamer :

  • Internet beschikbaar :

  • Privé

  • Privé

  • Privé

  • Privé

  • Ja

  • Huisdieren :

  • Roken :

  • Parkeerplaats :

  • Fietsenstalling :

  • Verboden

  • Verboden

  • Niet beschikbaar

  • Niet beschikbaar

Locatie