Huurflits
Stephensonstraat , 1097 BC Amsterdam
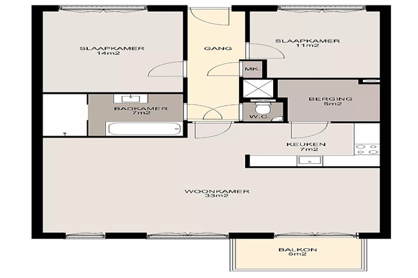
3-kamerappartement met een oppervlakte van 96 m2. Het appartement beschikt over een lichte woonkamer van 32 m2 met toegang tot het balkon van 7 m2. Het appartement heeft 2 slaapkamers. De ene slaapkamer is 15 m2 en de andere slaapkamer is 9 m2. Hier kun je bijvoorbeeld ook een prima werk- en/of studeerkamer van maken. De keuken is uitgerust met diverse inbouwapparatuur. De badkamer is luxueus uitgevoerd met een ligbad, douche en wastafel. Tevens tref je een aparte berging in het appartement welke is voorzien van een aansluiting voor jouw wasmachine en/of droger. Op de begane grond heb je nog een aparte berging en een parkeerplaats in de parkeergarage.
Huurprijs p.m. :
Oppervlakte :
Kamers :
Badkamers :
Slaapkamers :
€ 2.018,00
96 m2
3
1
2
Woningtype :
Interieur :
Beschikbaar vanaf :
Beschikbaar tot :
Huisgenoot :
Appartement
n/a
01-02-2026
n/a
0
Badkamer :
Toilet :
Keuken :
Woonkamer :
Internet beschikbaar :
Privé
Privé
Privé
Privé
Ja
Huisdieren :
Roken :
Parkeerplaats :
Fietsenstalling :
Toegestaan
Toegestaan
Niet beschikbaar
Niet beschikbaar