header-logo2.png Huurflits

Huis Zeevaart in Arnhem

Zeevaart , 6846 LR Arnhem

€ 1.425,00 excl. G/W/E

Beschrijving

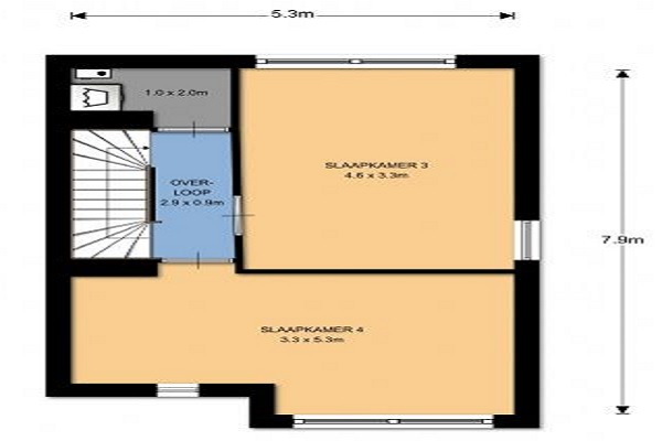
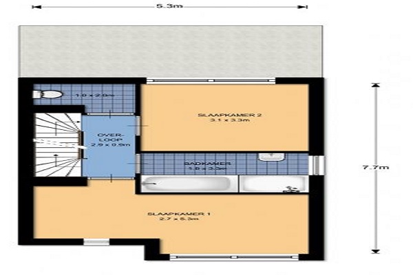
Via de entree betreedt je de hal met meterkast en een moderne toiletruimte. De hal is prettig licht en biedt toegang tot de trapopgang naar de eerste verdieping. De woonkamer is een fijne, lichte leefruimte en beschikt aan de achterzijde over openslaande tuindeuren die zorgen voor een mooie verbinding met buiten. Voorzijde is voorzien van een complete keuken. Ruime achtertuin, waar je dankzij de ligging op het zonnige zuidwesten tot in de avond kunt genieten van de zon. Naast de woning is een oprit. Via de overloop bereik je 2 ruime slaapkamers en de moderne badkamer welke compleet is uitgevoerd en beschikt over een ligbad, een separate douche en een vaste wastafel. Het toilet is gesitueerd in een aparte ruimte. Deze verdieping is bereikbaar via een vaste trap en biedt plaats aan twee slaapkamers. Daarnaast is er een fijne bergruimte aanwezig, voorzien van een wasmachineaansluiting, wat deze verdieping extra functioneel maakt.

Verstuur een bericht

Door een bericht te sturen kom je in contact met de aanbieder of makelaar van de woning.

Bericht versturen

Woningdetails

  • Huurprijs p.m. :

  • Oppervlakte :

  • Kamers :

  • Badkamers :

  • Slaapkamers :

  • € 1.425,00

  • 134 m2

  • 5

  • 1

  • 4

  • Woningtype :

  • Interieur :

  • Beschikbaar vanaf :

  • Beschikbaar tot :

  • Huisgenoot :

  • Huurwoning

  • n/a

  • 01-02-2026

  • n/a

  • 0

Faciliteiten

  • Badkamer :

  • Toilet :

  • Keuken :

  • Woonkamer :

  • Internet beschikbaar :

  • Privé

  • Privé

  • Privé

  • Privé

  • Ja

  • Huisdieren :

  • Roken :

  • Parkeerplaats :

  • Fietsenstalling :

  • Toegestaan

  • Toegestaan

  • Niet beschikbaar

  • Niet beschikbaar

Locatie