header-logo2.png Huurflits

Huis Oldenzaalsestraat in Enschede

Oldenzaalsestraat , 7574 PB Enschede

€ 1.425,00 excl. G/W/E

Beschrijving

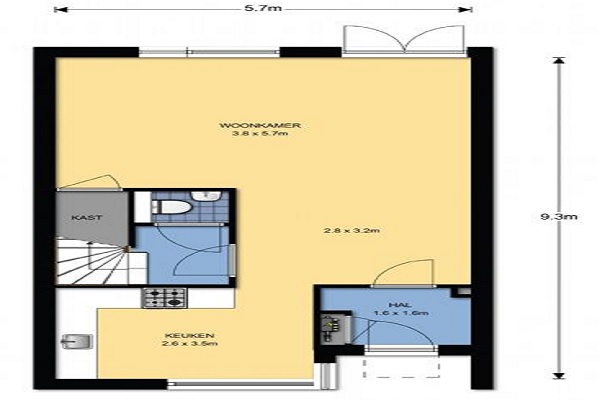
Entree, hal met trapopgang, trapkast, meterkast en toilet met Mosa-tegelwerk. De halfopen keuken in hoekopstelling is luxe afgewerkt met een natuurstenen werkblad, een oven, vaatwasser, koelkast en gaskooktoestel (allen van het merk AEG). De royale woonkamer met openslaande tuindeuren biedt toegang naar het gezellige terras en de achtertuin op het westen. De tuin biedt veel privacy en is geheel omsloten met een draadhekwerk en heeft een eigen achterom met tuinpoort. De woning heeft een garage inclusief een eigen extra parkeerplaats, welke bereikbaar is via het binnenterrein. Overloop met trapopgang, 3 slaapkamers en een badkamer met 2e toilet, ligbad, verlaagde douchebak met douchescherm en wastafel. De badkamer is afgewerkt met luxe Mosa-tegelwerk. Deze verdieping is met een vaste trap bereikbaar en biedt extra mogelijkheden. Tevens zijn hier de aansluitingen voor de wasmachine, wasdroger en cv gerealiseerd.

Verstuur een bericht

Door een bericht te sturen kom je in contact met de aanbieder of makelaar van de woning.

Bericht versturen

Woningdetails

  • Huurprijs p.m. :

  • Oppervlakte :

  • Kamers :

  • Badkamers :

  • Slaapkamers :

  • € 1.425,00

  • 126 m2

  • 4

  • 1

  • 3

  • Woningtype :

  • Interieur :

  • Beschikbaar vanaf :

  • Beschikbaar tot :

  • Huisgenoot :

  • Huurwoning

  • n/a

  • 01-03-2026

  • n/a

  • 0

Faciliteiten

  • Badkamer :

  • Toilet :

  • Keuken :

  • Woonkamer :

  • Internet beschikbaar :

  • Privé

  • Privé

  • Privé

  • Privé

  • Ja

  • Huisdieren :

  • Roken :

  • Parkeerplaats :

  • Fietsenstalling :

  • Toegestaan

  • Toegestaan

  • Niet beschikbaar

  • Niet beschikbaar

Locatie