header-logo2.png Huurflits

Huis Tillewei in Wjelsryp

Tillewei , 8842 LC Wjelsryp

€ 1.030,00 excl. G/W/E

Beschrijving

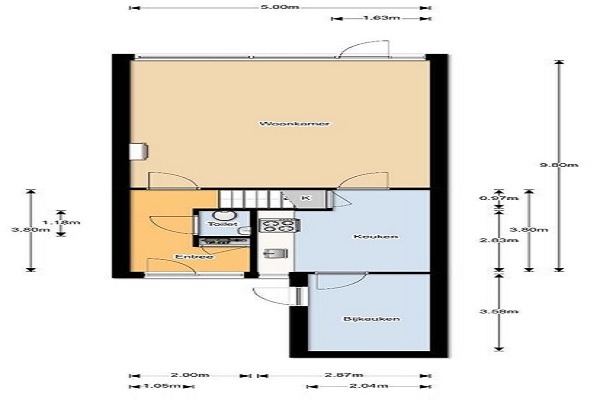
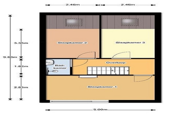
Indeling Entree, hal, meterkast, toilet, trapopgang. Ruime woonkamer met veel lichtinval en een landelijk uitzicht. De keuken is voorzien van inbouwapparatuur en een vaste bergkast onder de trapopgang. Toegang naar de bijkeuken met ruimte voor de witgoedopstelling en de achterdeur. De onderhoudsvriendelijke achtertuin beschikt over een achterom. Overloop, 3 ruime slaapkamers waarvan 2 aan de voorzijde en 1 aan de achterzijde. De badkamer is voorzien van een douche en een wastafel. De 2e verdieping is bereikbaar middels een vaste trap en is in gebruik als bergzolder. Deze ruimte heeft een nokhoogte van 2.3m en beschikt over de cv opstelling en een dakvenster. Keurig onderhouden achtertuin voorzien van bestrating en plantenbordes. De tuin beschikt over veel privacy, is gelegen op het Noord-Oosten en compleet met een achterom.

Verstuur een bericht

Door een bericht te sturen kom je in contact met de aanbieder of makelaar van de woning.

Bericht versturen

Woningdetails

  • Huurprijs p.m. :

  • Oppervlakte :

  • Kamers :

  • Badkamers :

  • Slaapkamers :

  • € 1.030,00

  • 95 m2

  • 4

  • 1

  • 3

  • Woningtype :

  • Interieur :

  • Beschikbaar vanaf :

  • Beschikbaar tot :

  • Huisgenoot :

  • Huurwoning

  • n/a

  • 01-02-2026

  • n/a

  • 0

Faciliteiten

  • Badkamer :

  • Toilet :

  • Keuken :

  • Woonkamer :

  • Internet beschikbaar :

  • Privé

  • Privé

  • Privé

  • Privé

  • Ja

  • Huisdieren :

  • Roken :

  • Parkeerplaats :

  • Fietsenstalling :

  • Toegestaan

  • Toegestaan

  • Niet beschikbaar

  • Niet beschikbaar

Locatie