header-logo2.png Huurflits

Appartement Jacob van Ruisdaelstraat in Utrecht

Jacob van Ruisdaelstraat , 3583 EH Utrecht

€ 1.700,00 excl. G/W/E

Beschrijving

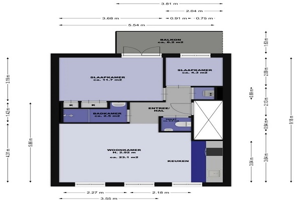
Indeling Bij binnenkomst tref je de entree via een gedeelde hal met trappenhuis. De woning bevindt zich op de tweede verdieping. Eenmaal binnengekomen in het appartement word je verwelkomt in een open hal inclusief ruimte voor een garderobe. De woonkamer beschikt over een open-keuken met veel lichtinval aan de voorzijde van het appartement. De keuken is van alle gemakken voorzien, van diverse inbouwapparatuur (koelkast + vriesvak, inductiekookplaat, oven, en vaatwasser) en beschikt over voldoende opbergruimte. Badkamer met inloopdouche en wastafel + spiegel en een separaat toilet. De grote slaapkamer heeft een vaste kastenwand en toegang tot een zonnig balkon. De tweede slaapkamer kan ook goed gebruikt worden als thuiswerkplek. Via de master slaapkamer is het balkon te bereiken. Het balkon heeft vlonders en heeft een oppervlakte van 6,2 m2.

Verstuur een bericht

Door een bericht te sturen kom je in contact met de aanbieder of makelaar van de woning.

Bericht versturen

Woningdetails

  • Huurprijs p.m. :

  • Oppervlakte :

  • Kamers :

  • Badkamers :

  • Slaapkamers :

  • € 1.700,00

  • 50 m2

  • 3

  • 1

  • 2

  • Woningtype :

  • Interieur :

  • Beschikbaar vanaf :

  • Beschikbaar tot :

  • Huisgenoot :

  • Appartement

  • n/a

  • 03-01-2026

  • n/a

  • 0

Faciliteiten

  • Badkamer :

  • Toilet :

  • Keuken :

  • Woonkamer :

  • Internet beschikbaar :

  • Privé

  • Privé

  • Privé

  • Privé

  • Ja

  • Huisdieren :

  • Roken :

  • Parkeerplaats :

  • Fietsenstalling :

  • Verboden

  • Toegestaan

  • Niet beschikbaar

  • Niet beschikbaar

Locatie