header-logo2.png Huurflits

Appartement Kruisplein in Rotterdam

Kruisplein , Rotterdam

€ 2.695,00 excl. G/W/E

Beschrijving

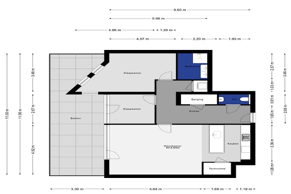
IDEAAL VOOR EXPATS Indeling: Entree, praktische hal met een grote kledingkast en een ruim toilet met wastafel. Hier vindt u ook een vaste kast met aansluitingen voor wasmachine en droger. De badkamer is netjes betegeld in neutrale kleuren en voorzien van een ruime inloopdouche, dubbele wastafel, spiegelkast en handdoekradiator. Twee slaapkamers, beide met een grote kledingkast. De ruime woonkamer heeft een open keuken (Barletti) bestaande uit een vast blok met ingebouwde apparatuur (Bora inductiekookplaat en zeer krachtige afzuiginstallatie, koelkast en aparte vrieslades, oven, combi-oven, bordenwarmer en een kookeiland met spoelbak en vaatwasser). Naast de keuken bevindt zich een vaste opbergkast met een praktische indeling en daardoor veel opbergruimte. Vanuit de woonkamer is er toegang tot het ruime terras. Beschut gelegen, zodat u al vroeg in de zomer buiten kunt eten en zonnebaden. Het gehele appartement is voorzien van een prachtige en zeer sterke PVC-vloer met vloerverwarming, strakke glasvezelwanden met schilderwerk en deuren met een stompe afwerking, en plafonds van 2,65 meter hoog.

Verstuur een bericht

Door een bericht te sturen kom je in contact met de aanbieder of makelaar van de woning.

Bericht versturen

Woningdetails

  • Huurprijs p.m. :

  • Oppervlakte :

  • Kamers :

  • Badkamers :

  • Slaapkamers :

  • € 2.695,00

  • 89 m2

  • 3

  • 1

  • 2

  • Woningtype :

  • Interieur :

  • Beschikbaar vanaf :

  • Beschikbaar tot :

  • Huisgenoot :

  • Appartement

  • n/a

  • 01-02-2026

  • n/a

  • 0

Faciliteiten

  • Badkamer :

  • Toilet :

  • Keuken :

  • Woonkamer :

  • Internet beschikbaar :

  • Privé

  • Privé

  • Privé

  • Privé

  • Ja

  • Huisdieren :

  • Roken :

  • Parkeerplaats :

  • Fietsenstalling :

  • Verboden

  • Verboden

  • Niet beschikbaar

  • Niet beschikbaar

Locatie