Huurflits
Piusplein , 5038 WL Tilburg
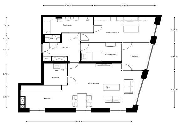
Indeling: Gezamenlijke entree/hal met bellentableau, brievenbussen en lift bevinden zich op de begane grond. Het luxe en modern afgewerkte appartement is gelegen op de 1e verdieping van dit complex. Vanuit de ruime hal biedt het toegang tot een riante woonkamer met open keuken, twee prima slaapkamers, aparte toiletruimte, een badkamer en een bergruimte. De ruim opgezette woonkamer met open keuken in neutrale kleuropstelling, zwart composiet blad is ingericht met de navolgende Siemens inbouwapparatuur: keramische kookplaat, afzuigkap, vaatwasser, combi-magnetronmet oven en koel/vriescombinatie. Het terras is gelegen op het oosten. Badkamer met ligbad, dubbele wastafel en douche. In de bergruimte bevinden zich de aansluiting ten behoeve van een wasmachine en droger.
Huurprijs p.m. :
Oppervlakte :
Kamers :
Badkamers :
Slaapkamers :
€ 1.895,00
96 m2
3
1
2
Woningtype :
Interieur :
Beschikbaar vanaf :
Beschikbaar tot :
Huisgenoot :
Appartement
n/a
31-12-2025
n/a
0
Badkamer :
Toilet :
Keuken :
Woonkamer :
Internet beschikbaar :
Privé
Privé
Privé
Privé
Ja
Huisdieren :
Roken :
Parkeerplaats :
Fietsenstalling :
Toegestaan
Toegestaan
Niet beschikbaar
Niet beschikbaar