header-logo2.png Huurflits

Appartement Palladiostraat in Rotterdam

Palladiostraat , 3066 AJ Rotterdam

€ 1.145,00 excl. G/W/E

Beschrijving

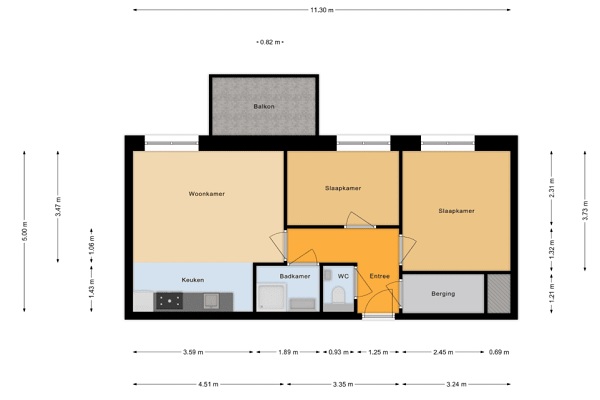
De woning, van ca 56 m2, kom je binnen via de hal met toegang tot alle vertrekken. De ruime woonkamer met open keuken is licht en biedt toegang tot het balkon. De keuken is voorzien van inbouwapparatuur. Er zijn twee goed formaat slaapkamers. De badkamer heeft een douche en wastafel met meubel. Daarnaast is er ook een apart toilet. In de berging is plek voor de wasmachine en droger.

Verstuur een bericht

Door een bericht te sturen kom je in contact met de aanbieder of makelaar van de woning.

Bericht versturen

Woningdetails

  • Huurprijs p.m. :

  • Oppervlakte :

  • Kamers :

  • Badkamers :

  • Slaapkamers :

  • € 1.145,00

  • 56 m2

  • 3

  • 1

  • 2

  • Woningtype :

  • Interieur :

  • Beschikbaar vanaf :

  • Beschikbaar tot :

  • Huisgenoot :

  • Appartement

  • n/a

  • 01-02-2026

  • n/a

  • 0

Faciliteiten

  • Badkamer :

  • Toilet :

  • Keuken :

  • Woonkamer :

  • Internet beschikbaar :

  • Privé

  • Privé

  • Privé

  • Privé

  • Ja

  • Huisdieren :

  • Roken :

  • Parkeerplaats :

  • Fietsenstalling :

  • Toegestaan

  • Toegestaan

  • Niet beschikbaar

  • Niet beschikbaar

Locatie