header-logo2.png Huurflits

Appartement Louise Henriettestraat in Den Haag

Louise Henriettestraat , 2595 CA Den Haag

€ 1.766,00 excl. G/W/E

Beschrijving

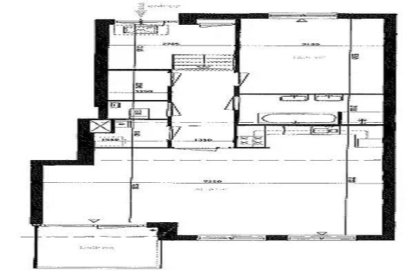
In het moderne en luxe wooncomplex CentreCourt bevindt zich dit ruime 2-kamerappartement van circa 91 m², en voorzien van een terras aan de rustige binnentuin. De woning heeft een eigen entree aan de straatzijde, wat zorgt voor extra privacy en een huiselijk gevoel. Via de hal en een korte trap kom je in het appartement. Hier beschik je over een royale woonkamer van maar liefst 45,6 m² met een open keuken. Dankzij de grote raampartijen is de leefruimte aangenaam licht en vanuit de woonkamer heb je direct toegang tot het terras, een fijne plek om buiten te zitten. De open keuken is praktisch ingericht en voorzien van moderne inbouwapparatuur, waaronder een gasfornuis, combimagnetron en een koelkast met vriesvak. De slaapkamer heeft een oppervlakte van circa 16,4 m² en biedt voldoende ruimte voor een comfortabel slaapgedeelte en kastruimte. De badkamer is ruim en compleet uitgevoerd met een ligbad, een aparte douche en twee wastafels. Daarnaast is er een separaat toilet en een inpandige berging met aansluitingen voor wasmachine en droger. Extra bergruimte is beschikbaar in de privéberging in de onderbouw. In het complex is een lift aanwezig.

Verstuur een bericht

Door een bericht te sturen kom je in contact met de aanbieder of makelaar van de woning.

Bericht versturen

Woningdetails

  • Huurprijs p.m. :

  • Oppervlakte :

  • Kamers :

  • Badkamers :

  • Slaapkamers :

  • € 1.766,00

  • 91 m2

  • 2

  • 1

  • 1

  • Woningtype :

  • Interieur :

  • Beschikbaar vanaf :

  • Beschikbaar tot :

  • Huisgenoot :

  • Appartement

  • n/a

  • 06-01-2026

  • n/a

  • 0

Faciliteiten

  • Badkamer :

  • Toilet :

  • Keuken :

  • Woonkamer :

  • Internet beschikbaar :

  • Privé

  • Privé

  • Privé

  • Privé

  • Ja

  • Huisdieren :

  • Roken :

  • Parkeerplaats :

  • Fietsenstalling :

  • Toegestaan

  • Toegestaan

  • Niet beschikbaar

  • Niet beschikbaar

Locatie