Huurflits
Maria Stuartplein , 2595 BW Den Haag
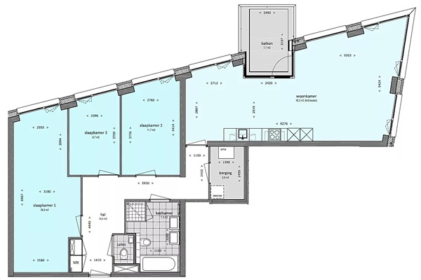
Wonen met je hoofd in de wolken? Dat kan in dit moderne vierkamerappartement van circa 111 m², gelegen op de 20e etage in het hart van Den Haag. Vanuit de woonkamer geniet je van een adembenemend uitzicht over de stad, elke dag weer anders, altijd indrukwekkend. De ruime leefkeuken vormt het kloppend hart van het appartement. Deze is compleet uitgevoerd met hoogwaardige inbouwapparatuur, waaronder een inductiekookplaat met afzuigkap, combimagnetron, vaatwasser en koel-vriescombinatie. Een ideale plek voor de thuiskok die graag kookt en gezelligheid belangrijk vindt. De badkamer is stijlvol afgewerkt en voorzien van een ruime douche, ligbad, wastafel met spiegel en toilet. Daarnaast beschikt het appartement over een separaat toilet, wat zorgt voor extra comfort. Verwarming, koeling en warm tapwater worden geleverd via Eteck. Dit zorgt voor een duurzaam en efficiënt binnenklimaat gedurende het hele jaar.
Huurprijs p.m. :
Oppervlakte :
Kamers :
Badkamers :
Slaapkamers :
€ 1.975,00
111 m2
4
1
3
Woningtype :
Interieur :
Beschikbaar vanaf :
Beschikbaar tot :
Huisgenoot :
Appartement
n/a
22-12-2025
n/a
0
Badkamer :
Toilet :
Keuken :
Woonkamer :
Internet beschikbaar :
Privé
Privé
Privé
Privé
Ja
Huisdieren :
Roken :
Parkeerplaats :
Fietsenstalling :
Toegestaan
Toegestaan
Niet beschikbaar
Niet beschikbaar