header-logo2.png Huurflits

Huis Fuchsiastraat in Eindhoven

Fuchsiastraat , 5644 LP Eindhoven

€ 1.400,00 excl. G/W/E

Beschrijving

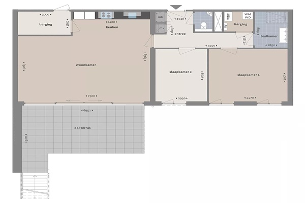
Authentieke entreepartij; hal met tegelvloer in terrazzostijl, trapopgang en handige kelderkast. Doorzonkamer voorzien van een houten vloer, aan de achterzijde openslaande tuindeuren en open verbinding met de keuken. Enkel voorzien van opbergruimte Douche, toilet en wastafel en voldoende opbergruimte. Onderhoudsvrije achtertuin, ruime berging en achterom. Overloop met toegang tot de 3 slaapkamers. Ruime open zolderverdieping met mogelijkheden. De ruimte is voorzien van de aansluitingen voor de wasapparatuur.

Verstuur een bericht

Door een bericht te sturen kom je in contact met de aanbieder of makelaar van de woning.

Bericht versturen

Woningdetails

  • Huurprijs p.m. :

  • Oppervlakte :

  • Kamers :

  • Badkamers :

  • Slaapkamers :

  • € 1.400,00

  • 94 m2

  • 5

  • 1

  • 3

  • Woningtype :

  • Interieur :

  • Beschikbaar vanaf :

  • Beschikbaar tot :

  • Huisgenoot :

  • Huurwoning

  • n/a

  • 01-01-2026

  • n/a

  • 0

Faciliteiten

  • Badkamer :

  • Toilet :

  • Keuken :

  • Woonkamer :

  • Internet beschikbaar :

  • Privé

  • Privé

  • Privé

  • Privé

  • Ja

  • Huisdieren :

  • Roken :

  • Parkeerplaats :

  • Fietsenstalling :

  • Toegestaan

  • Toegestaan

  • Niet beschikbaar

  • Niet beschikbaar

Locatie