header-logo2.png Huurflits

Huis Van Raemdonckstraat in Almere

Van Raemdonckstraat , 1336 AG Almere

€ 2.300,00 excl. G/W/E

Beschrijving

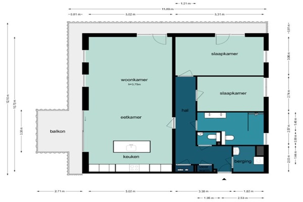
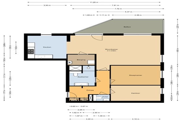
Ruime, gemeubileerde gezinswoning met 5 slaapkamers (ca. 147m2), voorzien van zonnepanelen op het dak. De hoofdslaapkamer heeft een eigen bad/douche, een aparte badkamer, een inloopkast en twee bergingen. Gratis parkeergelegenheid, maar ook een eigen parkeerplaats (achter het huis). Mooie, onderhoudsvriendelijke achtertuin. Nabij treinstation Oostvaarders, supermarkten en winkelcentrum Almere Buiten. Begane grond (ca. 52m2) Entreehal met garderobe en toilet. Toegang tot de ruime woon-/keuken-/eetkamer. Trap naar de eerste verdieping. De grote woonkamer is smaakvol ingericht en biedt toegang tot de (onderhoudsvriendelijke) tuin met grind. De woonkamer, met veel ramen, heeft een laminaatvloer en is comfortabel ingericht met een L-vormige bank, eettafel met stoelen, diverse kasten, tv en moderne lampen en wanddecoratie. Door de vele ramen is er veel licht en een zonnige sfeer. Aan de straatkant bevindt zich de L-vormige keuken met veel kastruimte. Apparaten: (gas)kookplaat met afzuigkap, vaatwasser, koelkast en vriezer, combi-oven/magnetron. Ook potten, pannen, servies en bestek: alles is aanwezig. Eerste verdieping (ca. 30m2) Hoofdslaapkamer - over de gehele diepte van het huis - met grote kledingkast, tweepersoonsbed (ander bed dan op de foto's) en bad/douche. Badkamer met dubbele wastafel, douche en toilet. De gehele eerste verdieping is betegeld. Wasruimte met wasmachine, droger en opbergruimte. Trap naar de tweede verdieping. Tweede/derde verdieping (ca. 35m2) 4 slaapkamers, waarvan 1 met een mezzanine en kast (geen bed), de 2e met een tweepersoonsbed met daarboven een eenpersoons hoogslaper en een klein kastje. De 3e slaapkamer is ongemeubileerd. De 4e slaapkamer heeft veel kasten (die naar de andere slaapkamers verplaatst kunnen worden) en wordt gebruikt als inloopkast. Op deze verdieping bevindt zich ook een berging met de cv-ketel (verwarmingssysteem).

Verstuur een bericht

Door een bericht te sturen kom je in contact met de aanbieder of makelaar van de woning.

Bericht versturen

Woningdetails

  • Huurprijs p.m. :

  • Oppervlakte :

  • Kamers :

  • Badkamers :

  • Slaapkamers :

  • € 2.300,00

  • 147 m2

  • 6

  • 2

  • 5

  • Woningtype :

  • Interieur :

  • Beschikbaar vanaf :

  • Beschikbaar tot :

  • Huisgenoot :

  • Huurwoning

  • n/a

  • 13-12-2025

  • n/a

  • 0

Faciliteiten

  • Badkamer :

  • Toilet :

  • Keuken :

  • Woonkamer :

  • Internet beschikbaar :

  • Privé

  • Privé

  • Privé

  • Privé

  • Ja

  • Huisdieren :

  • Roken :

  • Parkeerplaats :

  • Fietsenstalling :

  • Toegestaan

  • Toegestaan

  • Niet beschikbaar

  • Niet beschikbaar

Locatie