Huurflits
Maria Stuartplein , Den Haag
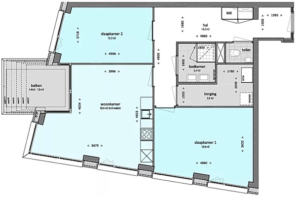
Dit driekamerappartement van ongeveer 78,1 m² op de 31e verdieping biedt luxe, comfort en een uitzicht dat nooit verveelt. De ruimte is precies in balans: groot genoeg om prettig te wonen, compact genoeg om zorgeloos te leven. Je stapt binnen in een lichte, open leefruimte die meteen warm aanvoelt. De leefkeuken is modern en uitgerust met alles wat je nodig hebt: een inductiekookplaat met afzuigkap, combimagnetron, vaatwasser en een koel-vriescombinatie. Of je nu snel iets klaarmaakt of uitgebreid kookt voor bezoek, hier heb je alle vrijheid. De badkamer is netjes en modern afgewerkt, met een ruime inloopdouche en een dubbele wastafel met grote spiegel. Het toilet is apart, wat in het dagelijks gebruik prettig is. Het balkon is een van de mooiste plekken van de woning. ’s Ochtends geniet je hier van de eerste zon en het uitzicht over de ontwakende stad. ’s Avonds is het een rustige plek om even bij te komen met een boek of een glas wijn.
Huurprijs p.m. :
Oppervlakte :
Kamers :
Badkamers :
Slaapkamers :
€ 1.795,00
78 m2
3
1
2
Woningtype :
Interieur :
Beschikbaar vanaf :
Beschikbaar tot :
Huisgenoot :
Appartement
n/a
01-02-2026
n/a
0
Badkamer :
Toilet :
Keuken :
Woonkamer :
Internet beschikbaar :
Privé
Privé
Privé
Privé
Ja
Huisdieren :
Roken :
Parkeerplaats :
Fietsenstalling :
Toegestaan
Toegestaan
Niet beschikbaar
Niet beschikbaar