header-logo2.png Huurflits

Appartement Oetgensstraat in Amsterdam

Oetgensstraat , Amsterdam

€ 2.150,00 excl. G/W/E

Beschrijving

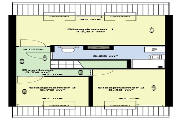
INDELING: Via het gemeenschappelijk trappenhuis naar de derde verdieping; entree, de woonkamer met toegang tot het balkon aan de voorzijde, de dichte keuken voorzien van een standaard keukenblok aan de achterzijde, separaat toilet met een fonteintje, via de interne trap naar de vierde verdieping. Vierde verdieping; overloop, twee slaapkamers aan de voorzijde, een slaapkamer aan de achterzijde, de badkamer is voorzien van een douche, wastafel en (tweede) toilet. De berging is gelegen in de onderbouw. Geen verhuur aan studenten!; De woning mag door maximaal 2 VOLWASSENEN bewoond worden (kinderen zijn welkom);

Verstuur een bericht

Door een bericht te sturen kom je in contact met de aanbieder of makelaar van de woning.

Bericht versturen

Woningdetails

  • Huurprijs p.m. :

  • Oppervlakte :

  • Kamers :

  • Badkamers :

  • Slaapkamers :

  • € 2.150,00

  • 89 m2

  • 4

  • 1

  • 3

  • Woningtype :

  • Interieur :

  • Beschikbaar vanaf :

  • Beschikbaar tot :

  • Huisgenoot :

  • Appartement

  • n/a

  • 12-12-2025

  • n/a

  • 0

Faciliteiten

  • Badkamer :

  • Toilet :

  • Keuken :

  • Woonkamer :

  • Internet beschikbaar :

  • Privé

  • Privé

  • Privé

  • Privé

  • Ja

  • Huisdieren :

  • Roken :

  • Parkeerplaats :

  • Fietsenstalling :

  • Toegestaan

  • Toegestaan

  • Niet beschikbaar

  • Niet beschikbaar

Locatie