header-logo2.png Huurflits

Appartement Stadhouderskade in Amsterdam

Stadhouderskade , 1074 BB Amsterdam

€ 2.500,00 excl. G/W/E

Beschrijving

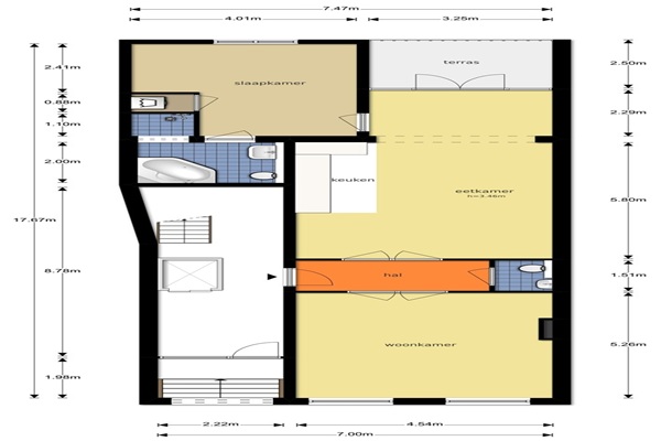
Binnenkomst via het nette gemeenschappelijk trappenhuis op de bel-etage. Zeer ruime en lichte woonkamer met open keuken. Het woongedeelte loopt vanaf de voorzijde tot achterzijde. Voor bevindt zich de ruime zitkamer en achter een open keuken met eetkamer. Tevens toegang tot ruim balkon achterzijde. Woonkamer opgedeeld in een ruime zit- en eethoek. Keuken voorzien van alle benodigde (inbouw) apparatuur. Ruime slaapkamer eveneens aan de achterzijde gelegen. Badkamer voorzien van bad, douche en wastafel. Separaat toilet. Separate ruimte voor wasmachine/droger.

Verstuur een bericht

Door een bericht te sturen kom je in contact met de aanbieder of makelaar van de woning.

Bericht versturen

Woningdetails

  • Huurprijs p.m. :

  • Oppervlakte :

  • Kamers :

  • Badkamers :

  • Slaapkamers :

  • € 2.500,00

  • 75 m2

  • 2

  • 1

  • 1

  • Woningtype :

  • Interieur :

  • Beschikbaar vanaf :

  • Beschikbaar tot :

  • Huisgenoot :

  • Appartement

  • n/a

  • 01-01-2026

  • n/a

  • 0

Faciliteiten

  • Badkamer :

  • Toilet :

  • Keuken :

  • Woonkamer :

  • Internet beschikbaar :

  • Privé

  • Privé

  • Privé

  • Privé

  • Ja

  • Huisdieren :

  • Roken :

  • Parkeerplaats :

  • Fietsenstalling :

  • Toegestaan

  • Toegestaan

  • Niet beschikbaar

  • Niet beschikbaar

Locatie