header-logo2.png Huurflits

Appartement Wibautstraat in Amsterdam

Wibautstraat , 1091 GR Amsterdam

€ 1.889,00 excl. G/W/E

Beschrijving

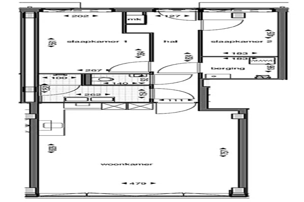
Dit moderne appartement in het geliefde gebouw Floor combineert comfort met een luxe afwerking. Je hebt twee ruime slaapkamers, een lichte woonkamer, een open keuken en een nette badkamer. Daarnaast is er een praktische berging met plek voor zowel een wasmachine als een droger. De woonkamer is licht en ruim, met grote ramen die zorgen voor een fijne sfeer. Het is een prettige plek om te ontspannen of gasten te ontvangen. De open keuken sluit mooi aan op de woonkamer. Deze is uitgerust met hoogwaardige inbouwapparatuur en biedt alles wat je nodig hebt als je graag kookt. Het appartement heeft twee royale slaapkamers. Beide kamers zijn goed in te delen en bieden ruimte voor een bed, kledingkasten en eventueel een werkplek. De badkamer is stijlvol afgewerkt en voelt als een rustige plek om je dag te beginnen of af te sluiten. Je vindt er een moderne inloopdouche en een dubbele wastafel.

Verstuur een bericht

Door een bericht te sturen kom je in contact met de aanbieder of makelaar van de woning.

Bericht versturen

Woningdetails

  • Huurprijs p.m. :

  • Oppervlakte :

  • Kamers :

  • Badkamers :

  • Slaapkamers :

  • € 1.889,00

  • 82 m2

  • 3

  • 1

  • 2

  • Woningtype :

  • Interieur :

  • Beschikbaar vanaf :

  • Beschikbaar tot :

  • Huisgenoot :

  • Appartement

  • n/a

  • 01-01-2026

  • n/a

  • 0

Faciliteiten

  • Badkamer :

  • Toilet :

  • Keuken :

  • Woonkamer :

  • Internet beschikbaar :

  • Privé

  • Privé

  • Privé

  • Privé

  • Ja

  • Huisdieren :

  • Roken :

  • Parkeerplaats :

  • Fietsenstalling :

  • Toegestaan

  • Toegestaan

  • Niet beschikbaar

  • Niet beschikbaar

Locatie