Huurflits
Maria Stuartplein , 2595 BW Den Haag
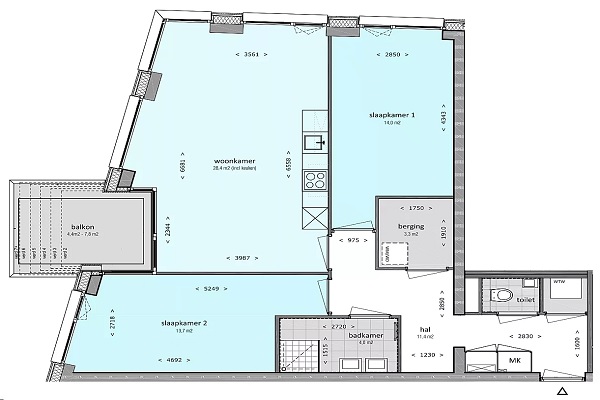
Dit royale driekamerappartement aan de Grotiusplaats in Den Haag biedt modern wooncomfort op een aantrekkelijke locatie midden in de stad. Met een woonoppervlakte van circa 79,7 m², twee ruime slaapkamers en een lichte woonkamer met open keuken, is dit een ideale woning voor wie comfortabel en centraal wil wonen. De woonkamer vormt het hart van het appartement. Dankzij de brede raampartijen valt hier veel daglicht binnen en ontstaat een prettig, open gevoel. De woonkamer staat in directe verbinding met de keuken, die praktisch is ingedeeld en voldoende ruimte biedt voor alle gewenste apparatuur. Vanuit de woonkamer geeft een schuifdeur toegang tot het balkon, waar je heerlijk kunt genieten van de buitenlucht. Beide slaapkamers liggen aan de rustige zijde van het appartement. De hoofdslaapkamer is ruim en praktisch in te delen, terwijl de tweede slaapkamer zich uitstekend leent als logeer- of werkkamer. De badkamer is modern vormgegeven, voorzien van een inloopdouche en wastafel, en grenst direct aan de hal. Daarnaast beschikt het appartement over een separate toiletruimte en een interne berging met aansluitingen voor wasmachine en droger. In de hal bevindt zich tevens de meterkast en de warmteterugwininstallatie. Het appartement beschikt over een logische en ruime plattegrond met veel licht en comfort. De ligging in het moderne complex The Roofs, op loopafstand van het centrum en het openbaar vervoer, maakt dit tot een bijzonder aantrekkelijke woonplek in Den Haag.
Huurprijs p.m. :
Oppervlakte :
Kamers :
Badkamers :
Slaapkamers :
€ 1.680,00
80 m2
3
1
2
Woningtype :
Interieur :
Beschikbaar vanaf :
Beschikbaar tot :
Huisgenoot :
Appartement
n/a
01-01-2026
n/a
0
Badkamer :
Toilet :
Keuken :
Woonkamer :
Internet beschikbaar :
Privé
Privé
Privé
Privé
Ja
Huisdieren :
Roken :
Parkeerplaats :
Fietsenstalling :
Toegestaan
Toegestaan
Niet beschikbaar
Niet beschikbaar