Huurflits
Bundweg , 3072 JX Rotterdam
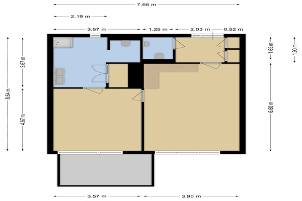
De woning beschikt over een entree/ hal met kast en toilet. Ruime woonkamer met open keuken (L-opstelling voorzien van apparatuur), een ruime geheel betegelde badkamer voorzien van dubbele wastafel, douche, toilet en ruimte voor wasmachine/ droger. Terras via schuifpui bereikbaar, ca. 9 m2 en gelegen op het zuiden. De woning is voorzien van een pvc-stroken vloer in een neutrale kleurstelling, de wanden zijn behangen en de plafond v.v. een fijn korrel spuitwerk. Geen studenten;
Huurprijs p.m. :
Oppervlakte :
Kamers :
Badkamers :
Slaapkamers :
€ 1.547,00
65 m2
3
1
1
Woningtype :
Interieur :
Beschikbaar vanaf :
Beschikbaar tot :
Huisgenoot :
Appartement
n/a
01-01-2026
n/a
0
Badkamer :
Toilet :
Keuken :
Woonkamer :
Internet beschikbaar :
Privé
Privé
Privé
Privé
Ja
Huisdieren :
Roken :
Parkeerplaats :
Fietsenstalling :
Toegestaan
Toegestaan
Niet beschikbaar
Niet beschikbaar