header-logo2.png Huurflits

Huis Hakendoverstraat in Tilburg

Hakendoverstraat , 5017 AX Tilburg

€ 1.605,00 excl. G/W/E

Beschrijving

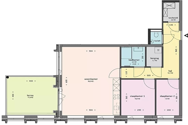
Indeling woning: Een ruime entreehal geeft toegang tot de L-vormige woonkamer/keuken. De keuken is voorzien van luxe energielabel A inbouwapparatuur en is gericht op de straat; vanuit de woonkamer kijk je uit op de achtertuin. Door de ligging profiteer je optimaal van het zonneterras. Op de eerste verdieping zijn er drie ruime slaapkamers. Net als op de begane grond is er vloerverwarming. Vanuit de grootste slaapkamer heb je uitzicht op de achtertuin. De ruime badkamer wordt compleet opgeleverd met luxe Villeroy & Boch sanitair. Via de vaste trap is er toegang tot de royale zolderverdieping met dakraam. Hier biedt de woning alle ruimte voor een extra slaapkamer, werkkamer, logeer- of hobbykamer.

Verstuur een bericht

Door een bericht te sturen kom je in contact met de aanbieder of makelaar van de woning.

Bericht versturen

Woningdetails

  • Huurprijs p.m. :

  • Oppervlakte :

  • Kamers :

  • Badkamers :

  • Slaapkamers :

  • € 1.605,00

  • 125 m2

  • 4

  • 1

  • 3

  • Woningtype :

  • Interieur :

  • Beschikbaar vanaf :

  • Beschikbaar tot :

  • Huisgenoot :

  • Huurwoning

  • n/a

  • 01-01-2026

  • n/a

  • 0

Faciliteiten

  • Badkamer :

  • Toilet :

  • Keuken :

  • Woonkamer :

  • Internet beschikbaar :

  • Privé

  • Privé

  • Privé

  • Privé

  • Ja

  • Huisdieren :

  • Roken :

  • Parkeerplaats :

  • Fietsenstalling :

  • Toegestaan

  • Toegestaan

  • Niet beschikbaar

  • Niet beschikbaar

Locatie