header-logo2.png Huurflits

Appartement Gerard Philipslaan in Eindhoven

Gerard Philipslaan , 5616 TZ Eindhoven

€ 1.200,00 excl. G/W/E

Beschrijving

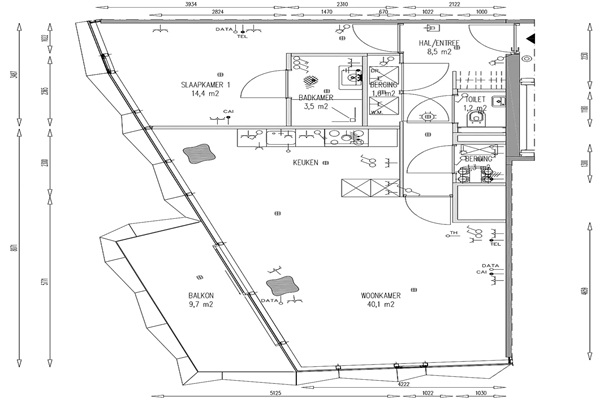
Indeling U komt binnen via de hal waaraan de slaapkamer, de badkamer, de toiletruimte, de bergingen en de woonkamer gelegen zijn. De licht overgoten woonkamer wordt gedomineerd door de grote raampartijen tot aan de grond. De woonkamer is door de verschillende vlinderpilaren speels van indeling. Een grote schuifpui geeft toegang tot het balkon. De luxe open keuken is engiszins verdekt opgesteld en beschikt over alle benodigde apparatuur. Zo is er een keramische kookplaat met afzuigkap, een vaatwasser, koel-/vriescombinatie en een combi-magnetron. Tevens is er voldoende kastruimte. De masterbedroom is ruim van opzet en biedt voldoende ruimte voor het plaatsen van een tweepersoonsbed en garderobekast. De badkamer beschikt over een praktische indeling en is voorzien van een inloopdouche met glazen douchewand en een vaste wastafel. De badkamer is bereikbaar vanuit de slaapkamer. Er is tevens een separate toiletruimte aanwezig. Vanuit de hal is de wasruimte te bereiken. Vanuit de hal is tevens een praktische berging te bereiken alwaar zich de WKO-installatie bevindt. Royaal balkon te bereiken door een glazen schuifpui vanuit de woonkamer.

Verstuur een bericht

Door een bericht te sturen kom je in contact met de aanbieder of makelaar van de woning.

Bericht versturen

Woningdetails

  • Huurprijs p.m. :

  • Oppervlakte :

  • Kamers :

  • Badkamers :

  • Slaapkamers :

  • € 1.200,00

  • 74 m2

  • 2

  • 1

  • 1

  • Woningtype :

  • Interieur :

  • Beschikbaar vanaf :

  • Beschikbaar tot :

  • Huisgenoot :

  • Appartement

  • n/a

  • 01-01-2026

  • n/a

  • 0

Faciliteiten

  • Badkamer :

  • Toilet :

  • Keuken :

  • Woonkamer :

  • Internet beschikbaar :

  • Privé

  • Privé

  • Privé

  • Privé

  • Ja

  • Huisdieren :

  • Roken :

  • Parkeerplaats :

  • Fietsenstalling :

  • Toegestaan

  • Toegestaan

  • Niet beschikbaar

  • Niet beschikbaar

Locatie