Huurflits
Nieuwmarkt , Amsterdam
-Locatie: Nieuwmarkt, Amsterdam (Rijksmonument met een adembenemend vrij uitzicht over de Nieuwmarkt); -Energielabel: A++ volledig geïsoleerd voor optimaal wooncomfort; -Vloerverwarming door het hele appartement voor een aangename temperatuur in elk seizoen; -Zeer luxe en moderne keuken, voorzien van alle gemakken en hoogwaardige apparatuur; -2 slaapkamers; -Video intercom systeem voor uw veiligheid en gemak; -Het gehele appartement is in 2024 volledig gerenoveerd onder begeleiding van een gerenommeerde architect.
Huurprijs p.m. :
Oppervlakte :
Kamers :
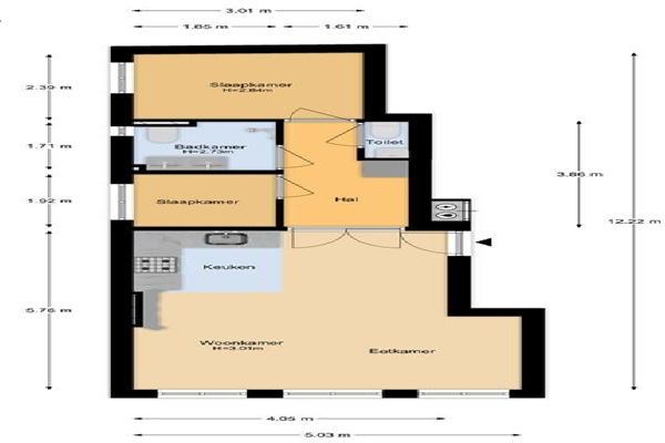
Badkamers :
Slaapkamers :
€ 2.750,00
48 m2
3
1
2
Woningtype :
Interieur :
Beschikbaar vanaf :
Beschikbaar tot :
Huisgenoot :
Appartement
n/a
02-01-2026
n/a
0
Badkamer :
Toilet :
Keuken :
Woonkamer :
Internet beschikbaar :
Privé
Privé
Privé
Privé
Ja
Huisdieren :
Roken :
Parkeerplaats :
Fietsenstalling :
Toegestaan
Verboden
Niet beschikbaar
Niet beschikbaar