Huurflits
Banne Buikslootlaan , 1034 XS Amsterdam
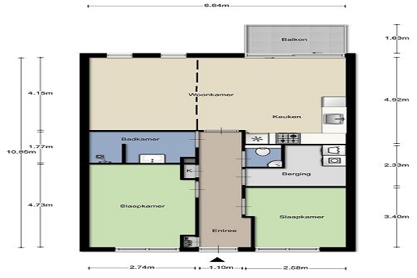
INDELING Via het verzorgde trappenhuis (met lift) bereikt u de entree van de woning op de eerste etage. Na het betreden van de woning bevindt u zich in de hal, waarna u de woonkamer met open keuken betreedt. Hier valt direct de natuurlijke lichtinval op: dankzij de grote raampartijen aan de voorzijde geniet u van een aangename, frisse sfeer. In de woonkamer vindt u de moderne keuken, voorzien van inbouwapparatuur zoals een inductiekookplaat, combi-oven/magnetron, vaatwasser, en koel-vriescombinatie. Door de royale opzet van deze verdieping is er meer dan voldoende ruimte voor een eethoek, én een comfortabele zitruimte. Via de hal betreedt u de achterzijde, waar twee goede ruime slaapkamers zijn gesitueerd. Centraal tussen de slaapkamers bevindt zich de badkamer, voorzien van een inloopdouche en een royaal wastafelmeubel. Aan de weerszijde bevindt tevens een separaat toilet. Tot slot beschikt de woning ook nog over een ruime inpandige en een externe berging. Kortom: een zeer efficiënt ingedeeld en licht appartement! Niet geschikt voor delers/studenten;
Huurprijs p.m. :
Oppervlakte :
Kamers :
Badkamers :
Slaapkamers :
€ 2.250,00
72 m2
3
1
2
Woningtype :
Interieur :
Beschikbaar vanaf :
Beschikbaar tot :
Huisgenoot :
Appartement
n/a
04-12-2025
n/a
0
Badkamer :
Toilet :
Keuken :
Woonkamer :
Internet beschikbaar :
Privé
Privé
Privé
Privé
Ja
Huisdieren :
Roken :
Parkeerplaats :
Fietsenstalling :
Toegestaan
Toegestaan
Niet beschikbaar
Niet beschikbaar