header-logo2.png Huurflits

Appartement Prinsessenpark in Leeuwarden

Prinsessenpark , 8931 EL Leeuwarden

€ 1.100,00 excl. G/W/E

Beschrijving

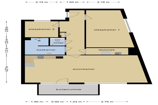
Indeling: Bij binnenkomst via de hal heeft u direct toegang tot alle vertrekken. Aan de voorzijde bevinden zich twee comfortabele slaapkamers. Daarnaast treft u een separaat toilet met fonteintje en een moderne badkamer, uitgerust met een wastafel, inloopdouche en een praktische handdoekradiator. Aan het einde van de hal opent zich de lichte woonkamer met aansluitend een eigentijdse keuken. Deze keuken is volledig uitgerust met een antraciet kunststof werkblad en luxe inbouwapparatuur, waaronder een koelkast met vriesvak, combimagnetron, vaatwasser, inductiekookplaat en afzuigkap. Vanuit de woonkamer stapt u zo uw eigen terras op, een fijne plek om te ontspannen.

Verstuur een bericht

Door een bericht te sturen kom je in contact met de aanbieder of makelaar van de woning.

Bericht versturen

Woningdetails

  • Huurprijs p.m. :

  • Oppervlakte :

  • Kamers :

  • Badkamers :

  • Slaapkamers :

  • € 1.100,00

  • 75 m2

  • 3

  • 1

  • 2

  • Woningtype :

  • Interieur :

  • Beschikbaar vanaf :

  • Beschikbaar tot :

  • Huisgenoot :

  • Appartement

  • n/a

  • 03-12-2025

  • n/a

  • 0

Faciliteiten

  • Badkamer :

  • Toilet :

  • Keuken :

  • Woonkamer :

  • Internet beschikbaar :

  • Privé

  • Privé

  • Privé

  • Privé

  • Ja

  • Huisdieren :

  • Roken :

  • Parkeerplaats :

  • Fietsenstalling :

  • Toegestaan

  • Toegestaan

  • Niet beschikbaar

  • Niet beschikbaar

Locatie